Projekte


Alpe Wildgunten
Bauherr
Artgenossenschaften Alpe Wildgunten
Artgenossenschaften Alpe Wildgunten
Ort
Mellau | AT
Mellau | AT
Typologie
GewerbeGastronomie
GewerbeGastronomie
Fertigstellung
2020
2020
Fotografie
Nicolas Felder
Nicolas Felder
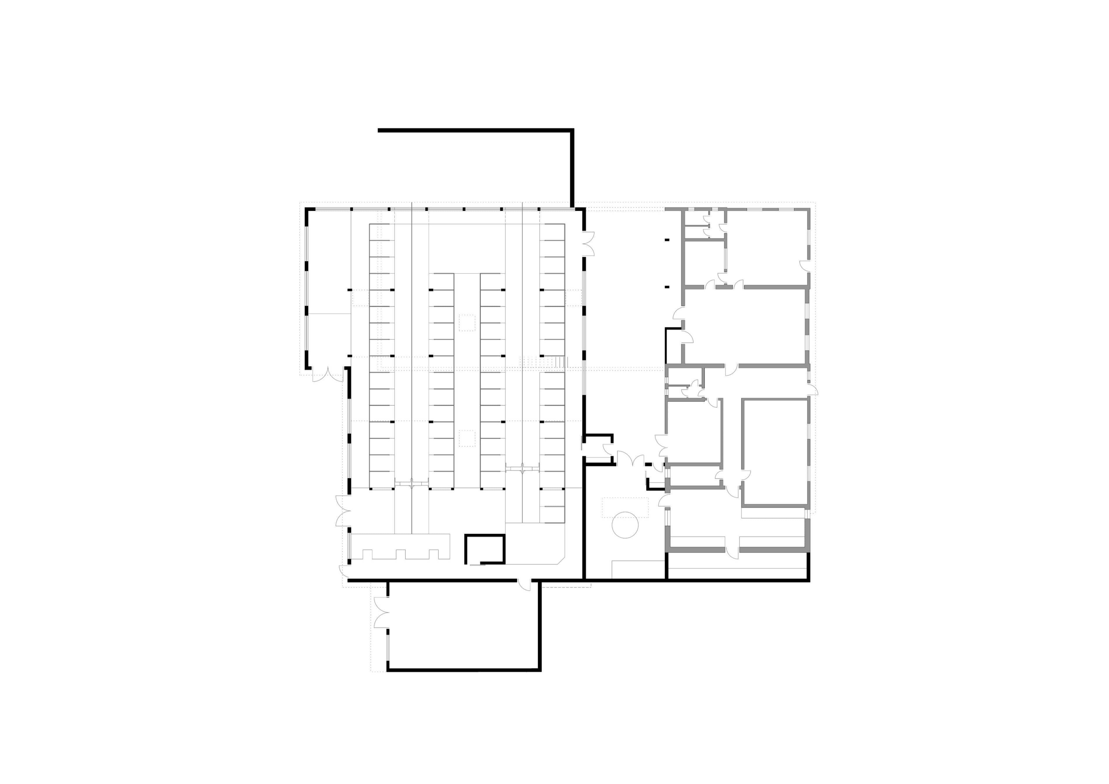
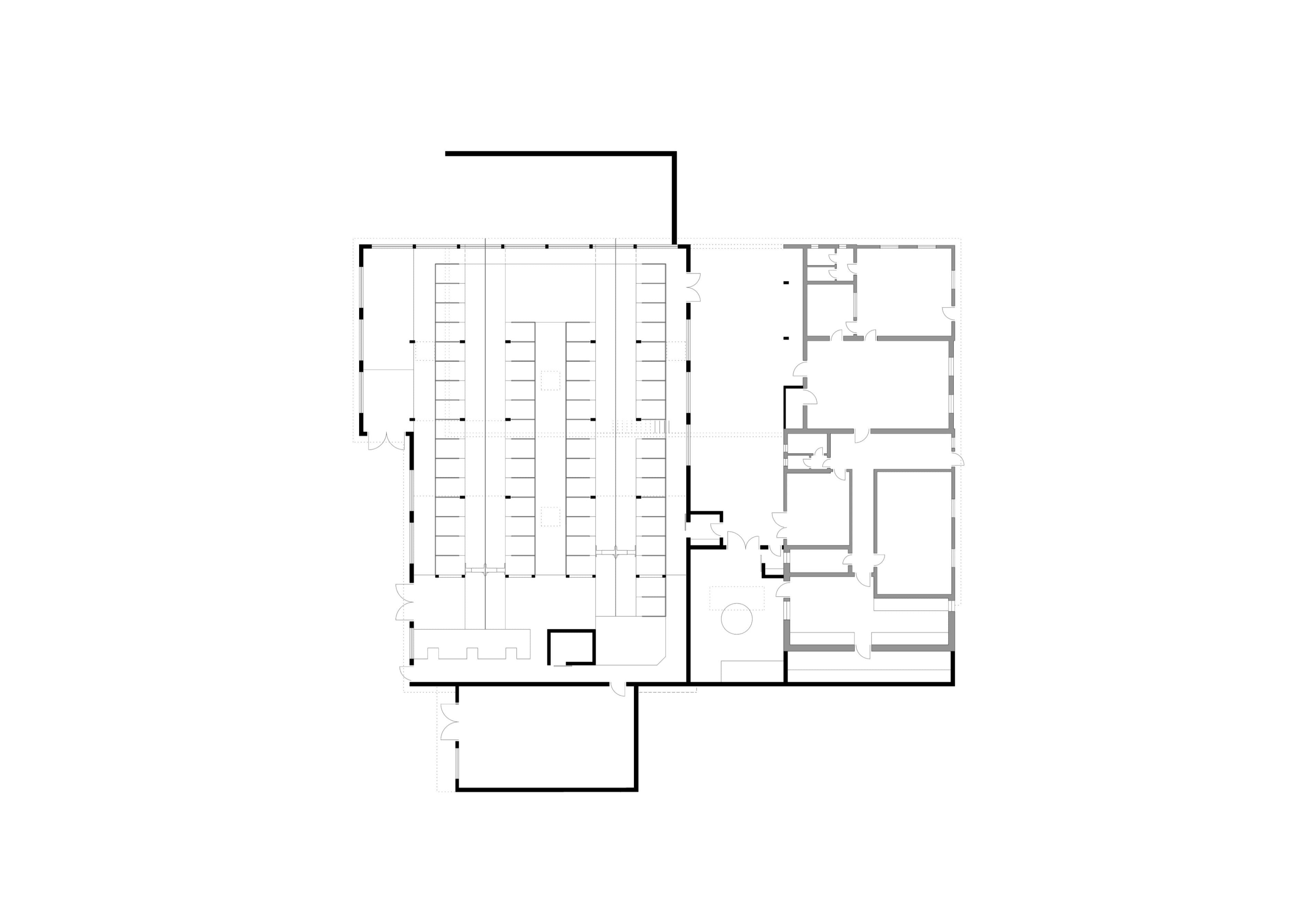
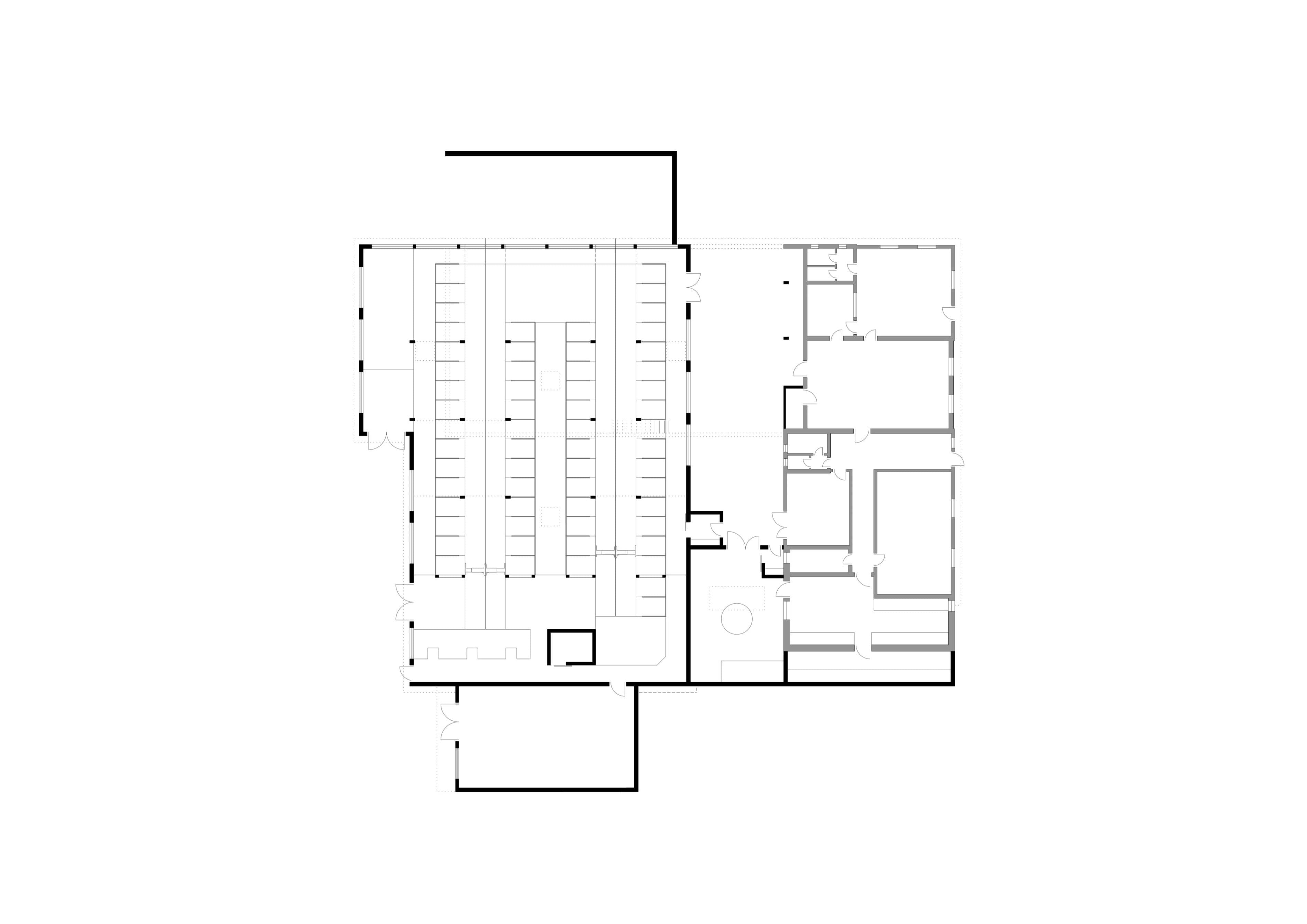
In alpiner Lage wurde, nach dem Vorbild des Bestandsgebäudes, die Alpe Wildgunter erneuert und saniert. Die Alpe liegt direkt an der Skipiste und dient somit ganzjährig zur Bewirtschaftung von Urlaubern und Besuchern. Zudem wird die Alpe im Sommer als Melkalpe mit ca. 80 Tieren bewirtschaftet.
Bei den Baumaßnahmen wurde der alte Stall samt Einrichtung durch einen Neubau ersetzt. Zudem wurde die ursprüngliche Nutzung durch einen Laufstall samt Nebenflächen, eine Melk- und Käserei sowie ein Heu- und Maschinenlager ergänzt.
„Das verwendete Holz wurde aus dem eigenen Wald entnommen und in der nahe gelegenen Zimmerei zu einem traditionellen Holzdachstuhl verarbeitet.“

Schwarzplan



Grundriss

Schnitt





