

Pflegeheim Antoniushaus
Kongregation der Kreuzschwestern, Wels
Feldkirch | AT
Pflegeheim
1. Preis - 2010
2013
Norman Radon
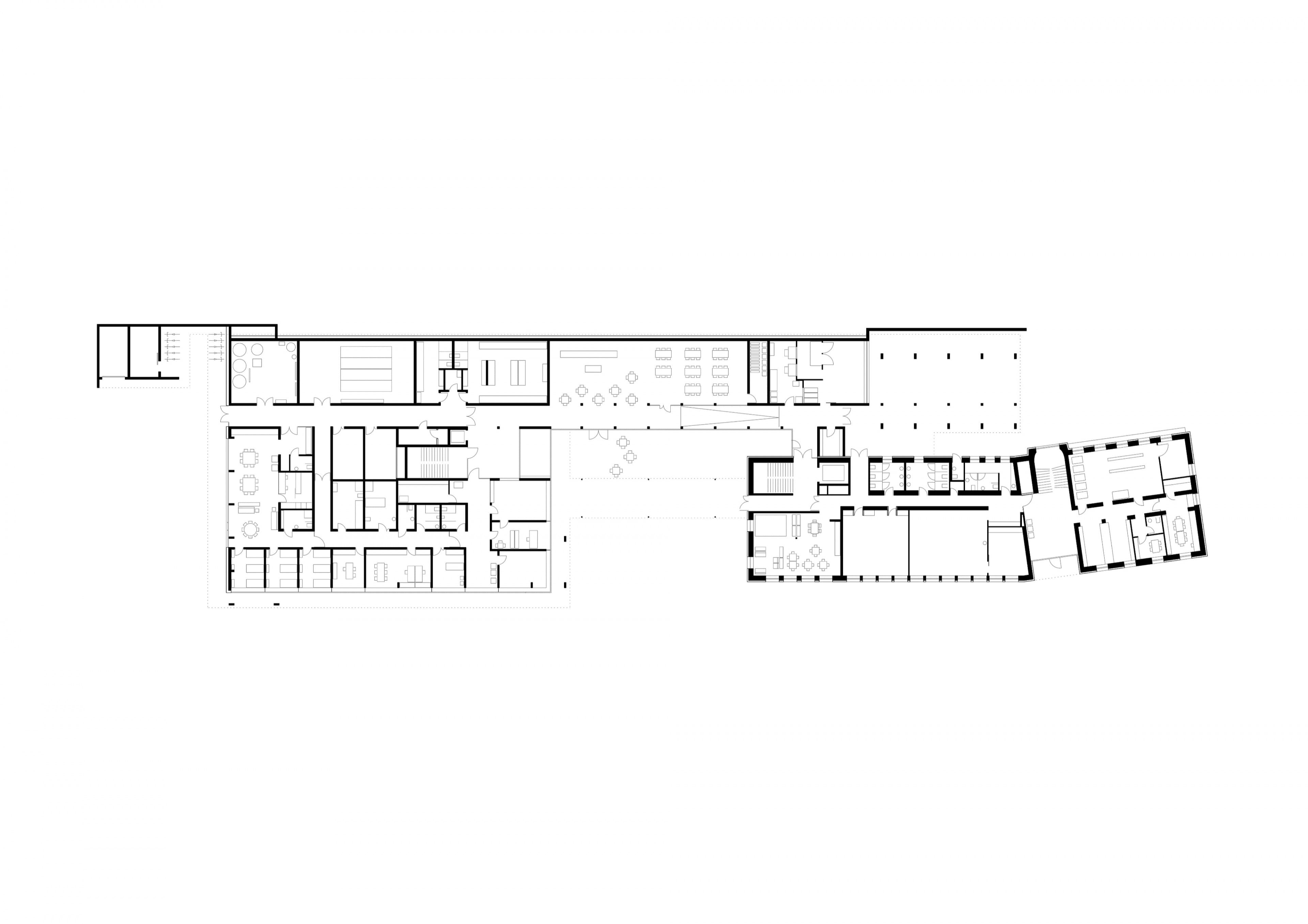
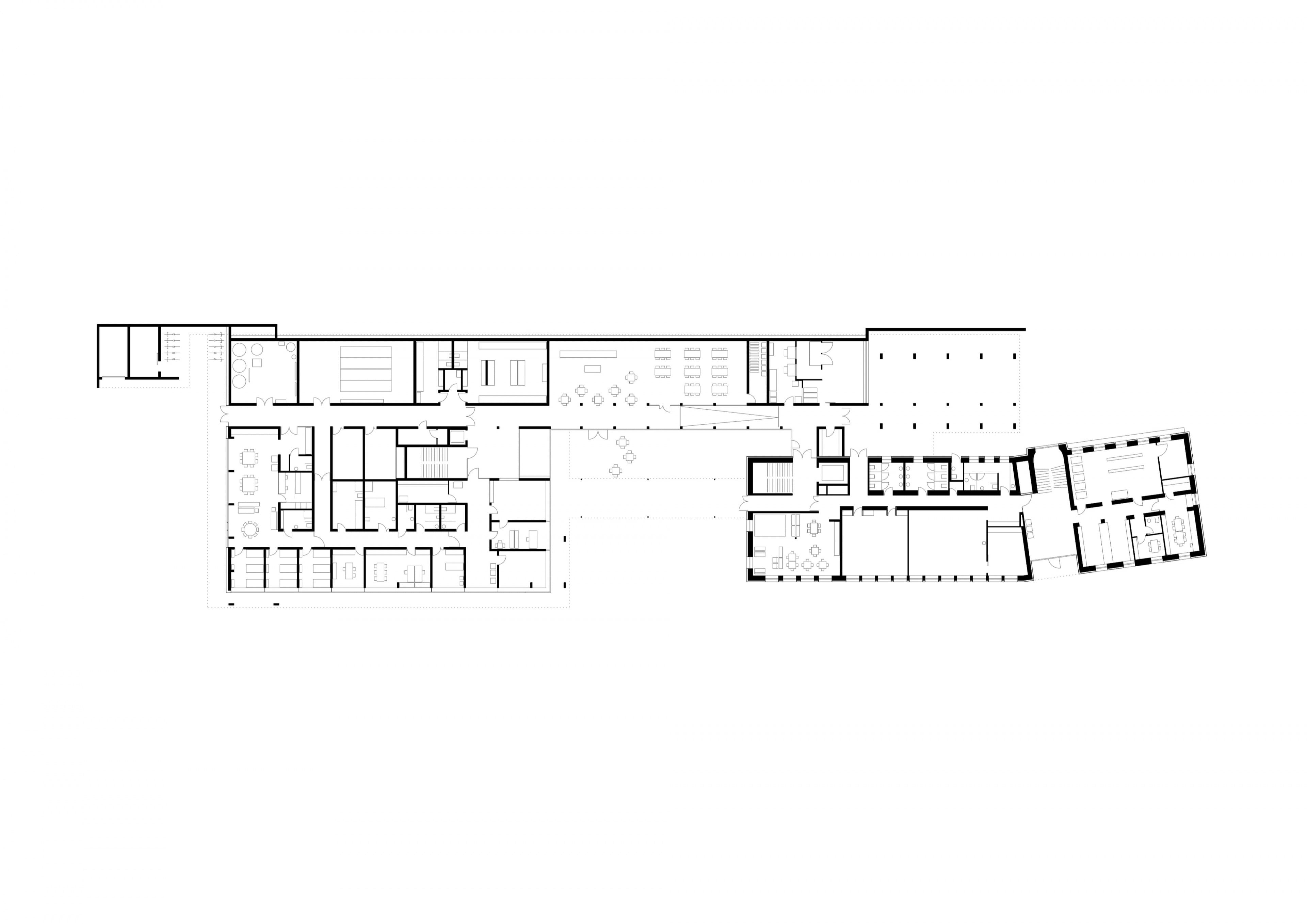
Von der Ferne sichtbar, prominent in südostseitiger Hanglage am Blasenberg, an der Schnittstelle von kleinteiliger Bebauungsstruktur und freier Naturlandschaft mit Streuobstwiesen, steht das Antoniushaus. Das Seniorenheim mit Kindergarten wird nicht nur renoviert, sondern auch vergrößert, das Bauvolumen verdoppelt. Der Neubau wird anstelle des Abbruchgebäudes südwestlich des Altbaus situiert, umgreift ihn in einer Spange und bildet somit einen funktionalen Gesamtkomplex. Das äußere Erscheinungsbild des Altbaus mit seiner Lochfassade wird beim Neubau übernommen und neu interpretiert.
Der Neubau ist als Holzbau konzipiert, mit Aussteifungskern in Sichtbeton und vorgefertigten Holzboxen. Die Argumente für die Modulbauweise waren der hohe Wiederholungsfaktor von immer gleichen Zimmern, die geforderte Bauzeit von nur einem Jahr, die Beanspruchung der Anrainer und die verkehrstechnische Lage. Die Boxen wurden fix fertig, inklusive aller Installationen, geliefert und aneinandergestapelt. Akustisch beste Werte ergeben sich durch die Zweischaligkeit. Jedes Zimmer grenzt mit Luftzwischenraum an das andere, die tragenden Längswände stehen auf Neopren-Lagern übereinander. Die Holzfassade kommt ebenfalls als fertiges Dämmpaketelement auf die Baustelle.


















