

Kinderhaus Bad Saulgau
Stadt Bad Saulgau
Bad Saulgau | DE
KindergartenKinderkrippe
Planstatt Senner
1.Preis 2022
2023
Peter Ziegner
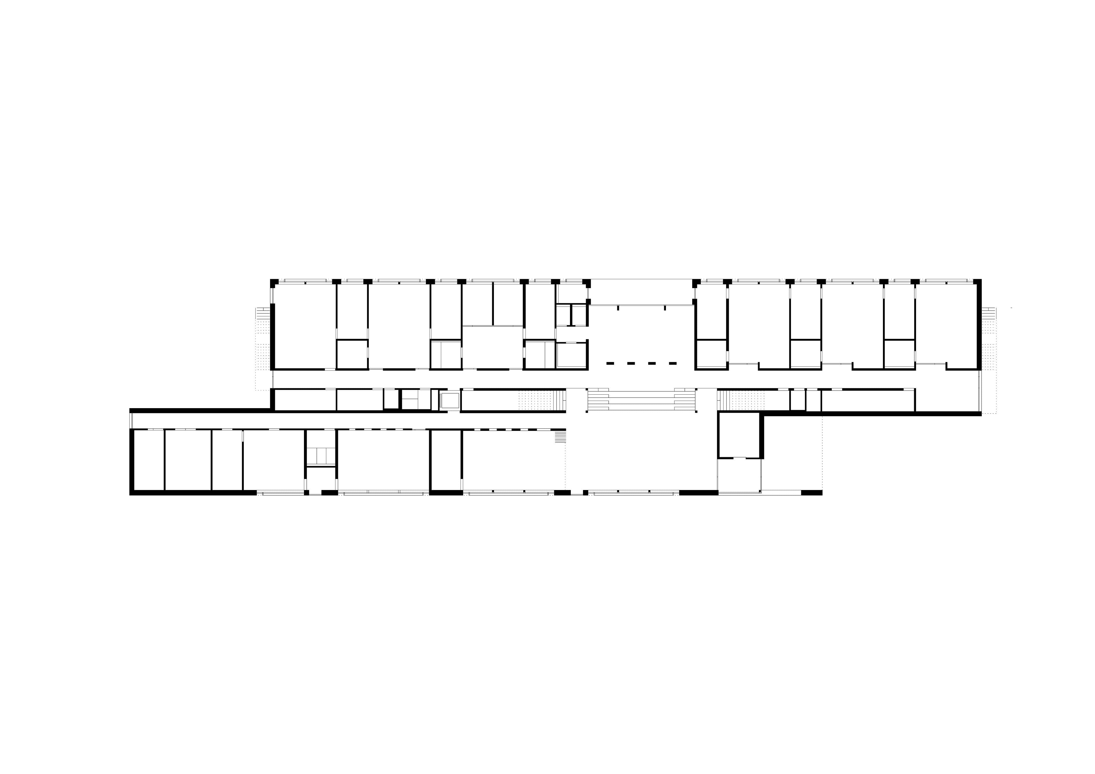
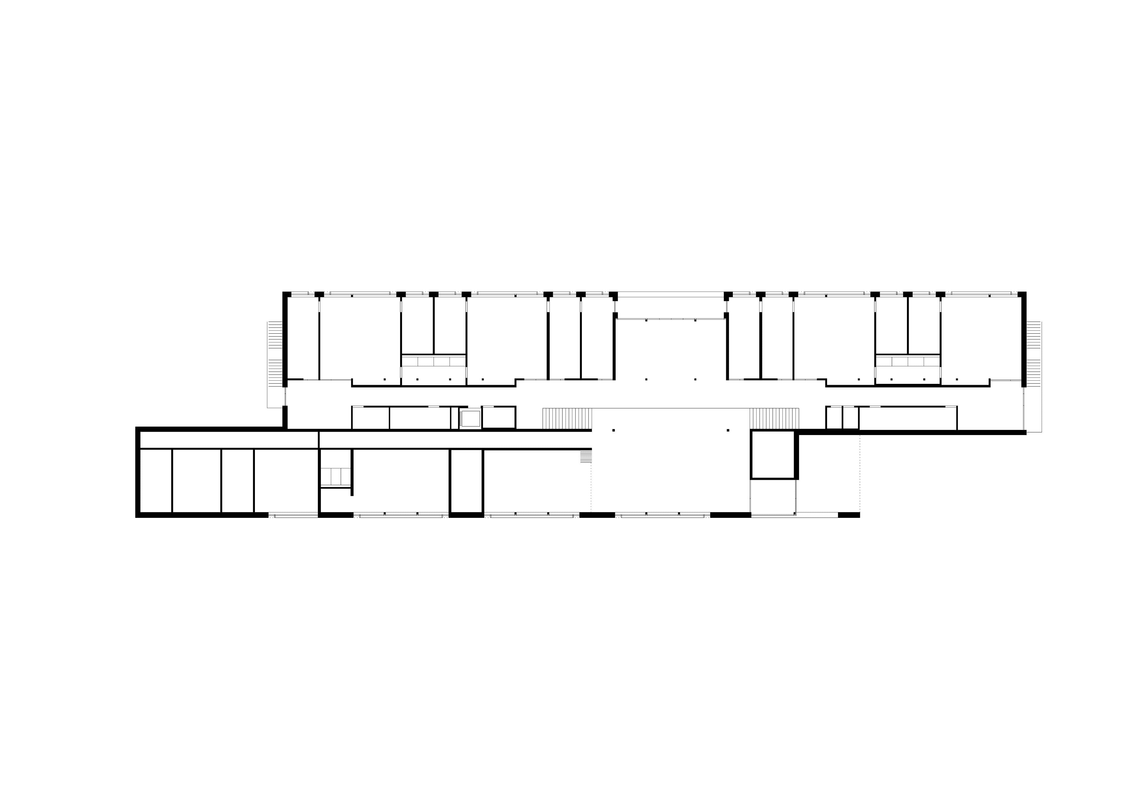
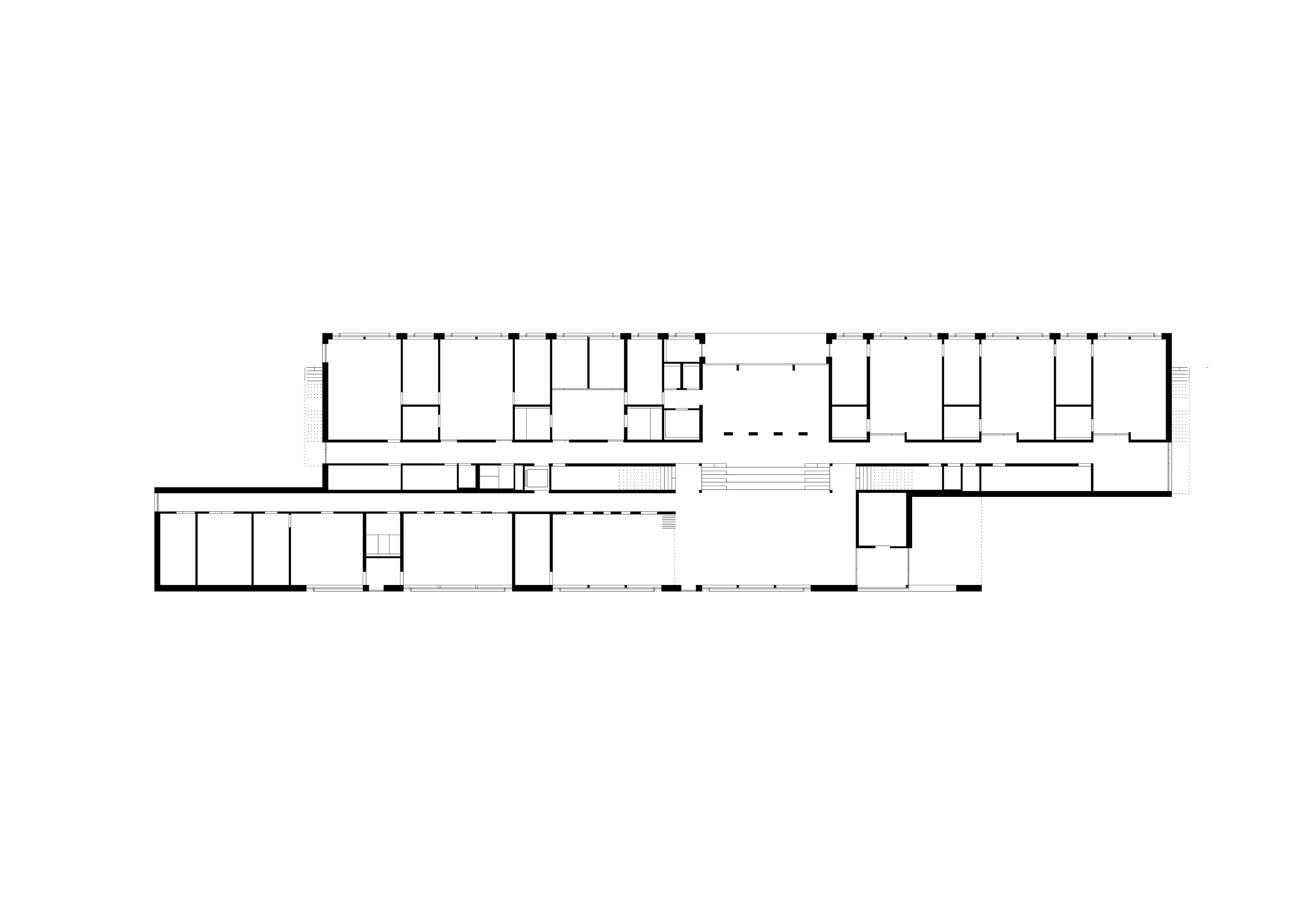
Der Neubau ist straßenbegleitend an der Elisabethenstraße angeordnet. Der Baukörper besteht im Grunde aus zwei langgezogenen Volumen mit unterschiedlicher Geschossigkeit.
Der westseitige Eingangshof an der Elisabethenstraßen bildet das Bindeglied zwischen der Zufahrtsstraße, dem öffentlichen Fußweg, den geforderten Parkplätzen und dem Neubau. Er bildet zudem die beruhigte Vorzone vor dem Eingang und bietet den Kindern und Eltern einen ersten Ort für Interaktion. Die nötige Anlieferung und Abholungen des Kindergartens erfolgten getrennt vom Haupteingang im Osten des Grundstücks. Nordseitig befinden sich die großzügigen Freianlagen / Spielflächen.
Die Höhensituierung der beiden Volumina orientiert sich an dem anschließenden natürlichen Geländeverlauf. Aufgrund der leichten Hangsituation des Grundstücks sind die beiden Volumina um ein Halbgeschoss zueinander versetzt. Der eingeschossige Baukörper entlang der Elisabethenstraße orientiert sich mit seinem Zugangsniveau an der Straße, der zweigeschossige Baukörper entsprechend dem nordseitigen Außenspielbereich. Dadurch gelingt beidseitig ein ebenerdiger Zugang ohne zusätzliche Geländemodellierungen.
Grundsätzlich werden die Nutzungen entsprechend dieser beiden Ausrichtungen klar aufgeteilt. Die allgemeinen Nutzungen wie das Foyer, der Bewegungsraum, der Essraum und die Küche mit Nebenräumen befinden sich somit in dem eingeschossigen Gebäudeteil, welcher sich straßenseitige orientiert. In dem zweigeschossigen Gebäudeteil, welcher in Richtung Außenanlagen orientiert ist, befindet sich in der unteren Ebene die dreigruppige Kinderkrippe mit Nebenräumen, sowie die Räumlichkeiten für das Personal / Verwaltung. In der oberen Ebene befindet sich der viergruppige Kindergarten inkl. Nebenräumen.
Als Herzstück der internen Gebäudestruktur agiert das Foyer. Diese großzügige Fläche inkl. der tribünenartigen Situation dient als Treffpunkt, kann für Veranstaltungen genutzt werden und soll den Kindern/Eltern als zentraler Platz Orientierung innerhalb des Gebäudes bieten. Über das Foyer sind auch die Treppenanlagen und somit alle Gebäudeebenen erreichbar. Ebenfalls dem Foyer zugeordnet ist der Bewegungsraum, diese Fläche kann bei Bedarf mithilfe eines beweglichen Trennwandsystems dem Forum zugeschlagen werden.


















