

Wohnanlage Langenegg Leiten
ZIMA Wohnbaugesellschaft mbH
Langenegg | AT
Wohnbau
2023
Bruno Klomfar
In Langenegg, im Ortsgebiet „Leiten“, verfügte die Gemeinde über ein gewidmetes Grundstück mit einer Fläche von 9.900m2. Diese Fläche wurde genutzt, um ein Bebauungskonzept zu entwickeln, mit dem Ziel einen Lösungsansatz für leistbaren Wohnraum für die Bewohner der Gemeinde Langenegg zu schaffen. Und das im Sinne eines nachhaltigen Umgangs mit Grund und Boden in verdichteter Bauweise.
Als erklärtes Ziel gilt es, das neue Quartier „Leiten“ neben einer hohen Wohn- und Lebensqualität, auch durch eine hochwertige ortsbildverträgliche Gestaltung zu entwickeln. Als städtebauliches Leitmotiv einer ressourcenschonenden und nachhaltigen Innenverdichtung der baulichen Struktur dient die klassische Bregenzerwälder Weilerstruktur. Die gestalterischen Kriterien für einen lebenswerten Siedlungsraum in diesem Sinne sind Dichte, Atmosphäre und Identität.
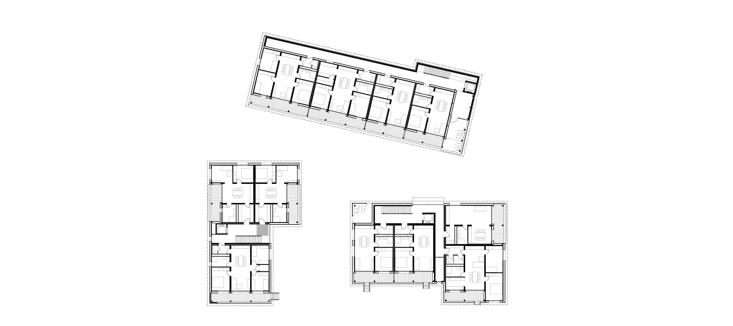
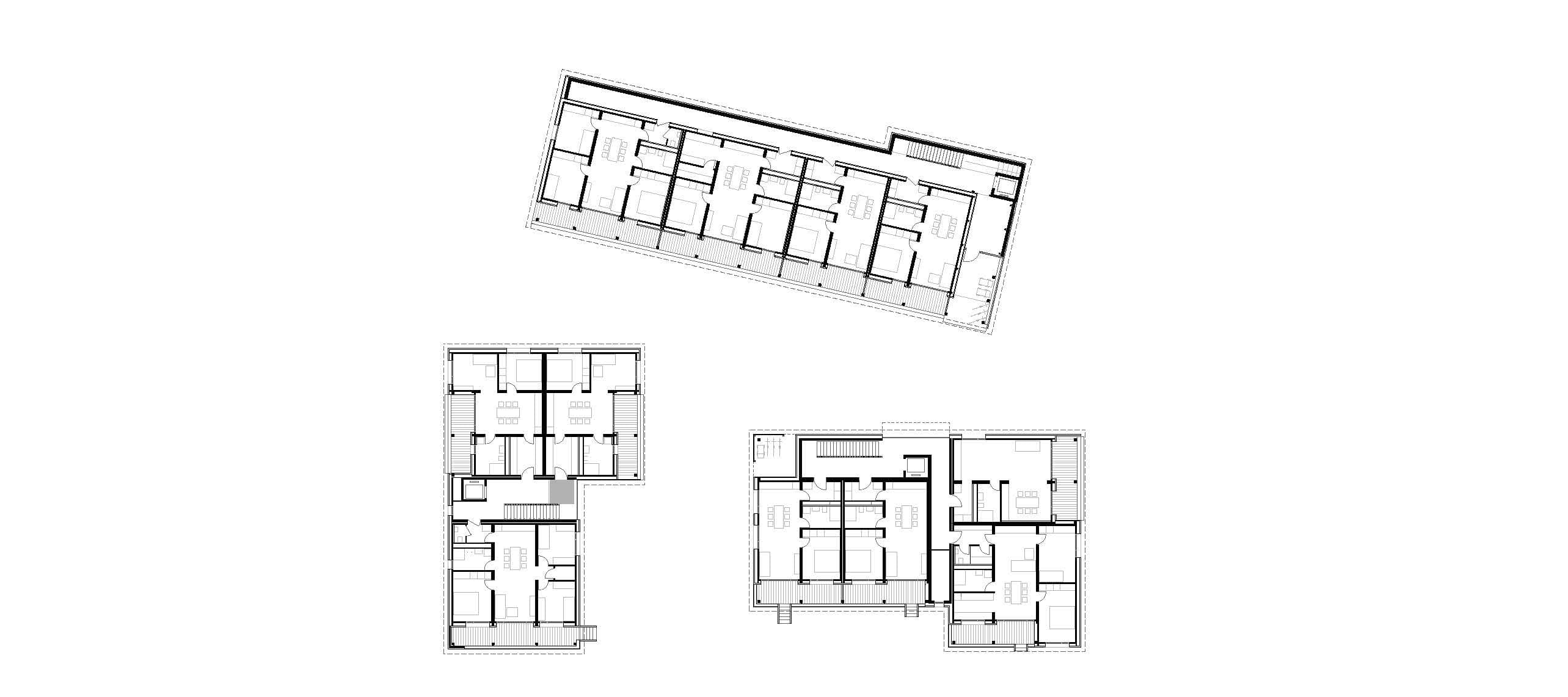
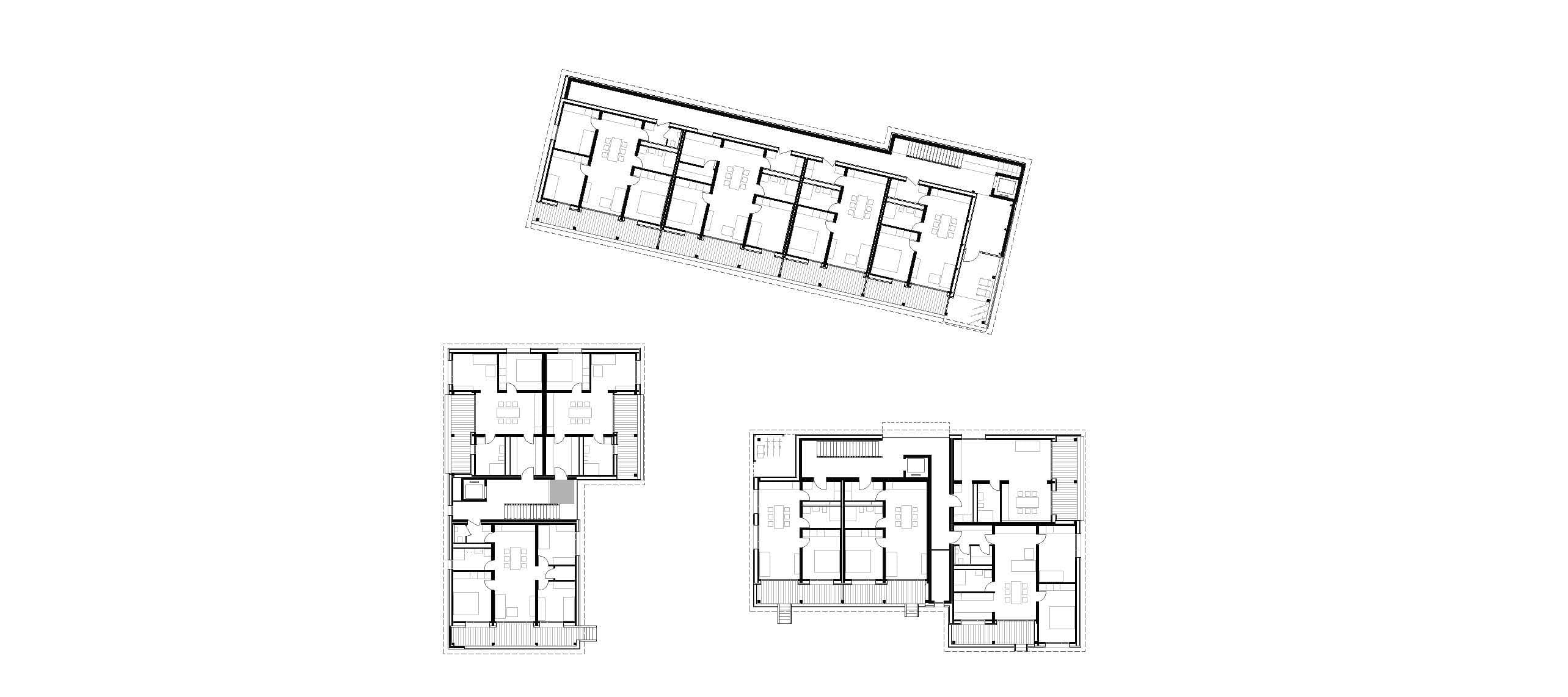
Das neue Wohnquartier, bestehend aus drei Baukörpern und einer gemeinsamen unterirdischen Tiefgarage, fügt sich entsprechend der im Vorfeld formulierten raumplanerischen Leitgedanken in die bestehende bauliche Struktur ein. Als Basis für die Grundrisse diente dabei das Wohnsystem von purelivin, welches als modulares Holzmodulbausystem entwickelt wurde und für dieses Projekt adaptiert wurde.
Die beiden straßenbegleitenden Gebäude mit Kreuzgiebel stellen von der Grundrissstruktur einen Spännertyp mit innenliegendem Treppenhaus dar. Das Gebäude in zweiter Reihe ist als Laubengang Typ mit Satteldach konzipiert. Die Fassade wurde ebenfalls abweichend zu den beiden Gebäuden in erster Reihe mit einer Schirmfassade ausgeführt.












