Projekte


Personalhaus Biberkopf
Bauherr
Arlberg Biberkopf Tourismus GmbH
Arlberg Biberkopf Tourismus GmbH
Ort
Warth | AT
Warth | AT
Typologie
Personalhaus
Personalhaus
Fertigstellung
2020
2020
Auszeichnungen
Vorarlberger Holzbaupreis 2021 - Anerkennung
Fotografie
Bruno Klomfar
Bruno Klomfar
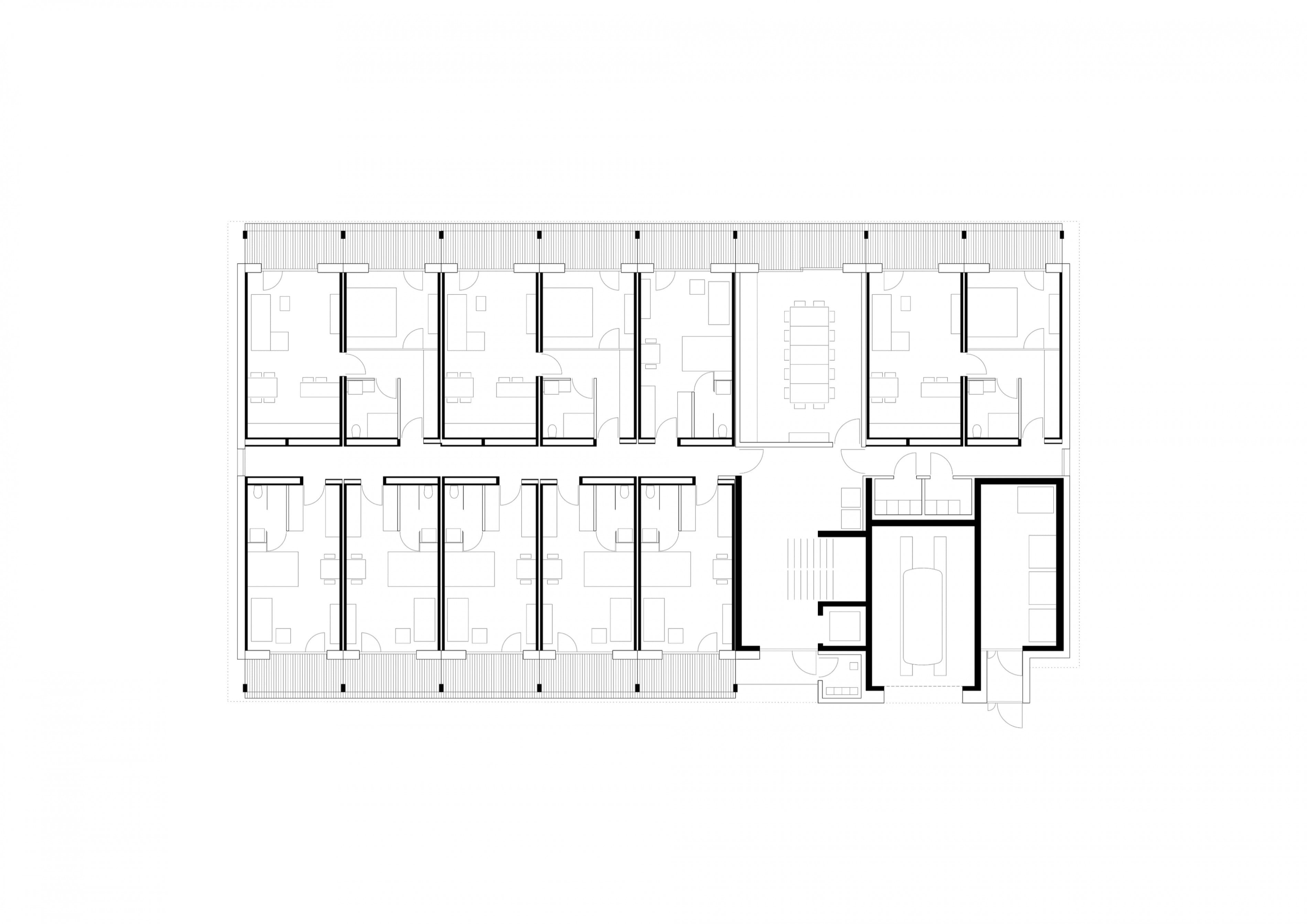
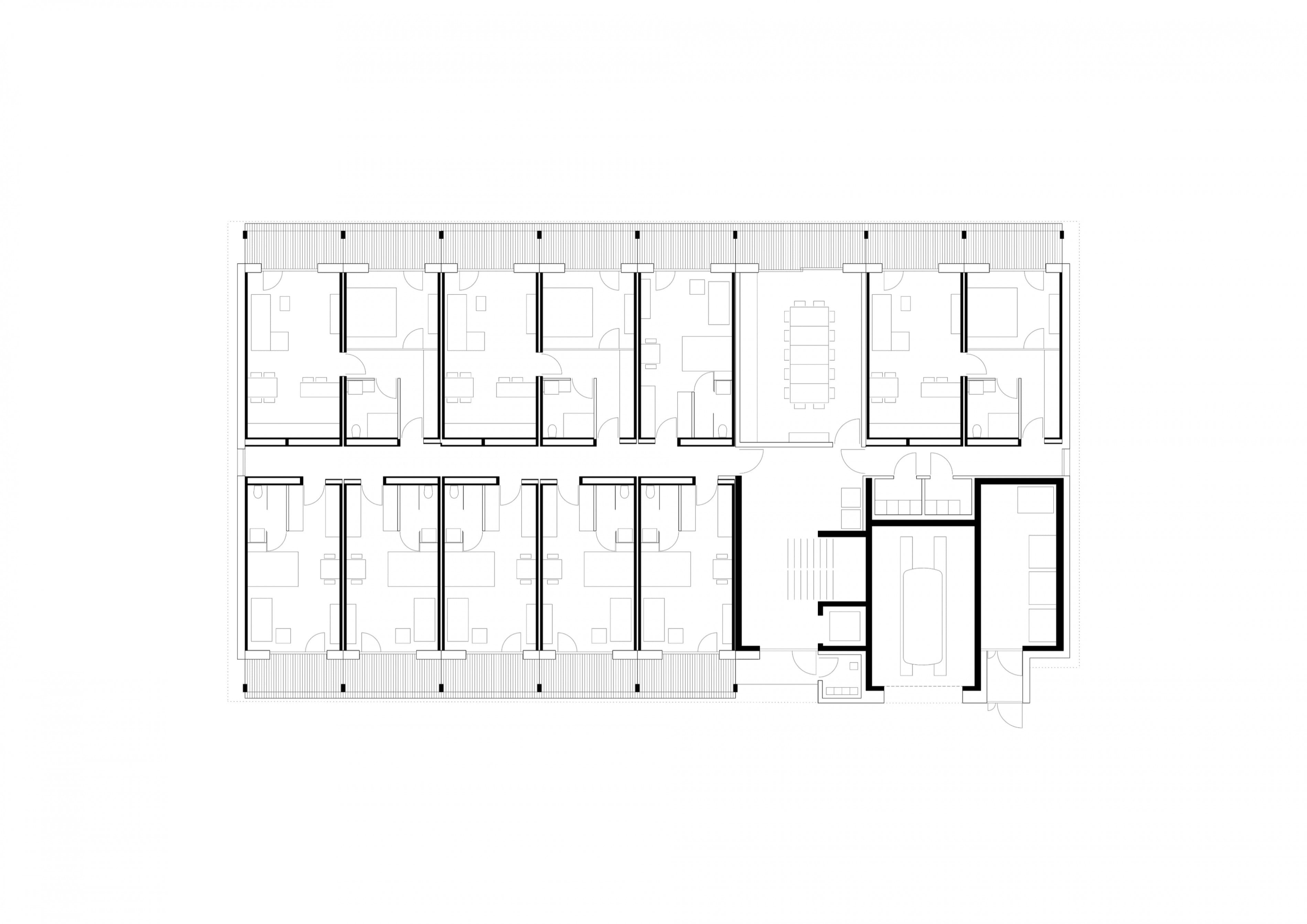
In unmittelbarer Nähe zum Dorfzentrum entstand das „Personalhaus Biberburg“ mit 37 Zimmern für die Mitarbeiter des Hotels Biberkopf. Ein viergeschossiger Holzmodulbau (43 Module) steht auf einer zweigeschossigen Tiefgarage, die über eine Brücke und einen Autolift von der oberhalb liegenden Lechtalstraße aus erschlossen wird. Der zurückhaltende Baukörper in steiler Hanglage bietet einen spektakulären Blick ins Lechtal und auf den Biberkopf.

Schwarzplan





Regelgeschoss

