

Zimmerei Kaufmann
Zimmerei Kaufmann
Reuthe | AT
Büro und Produktionsgebäude
2018
bestarchitects23
Vorarlberger Holzbaupreis 2019 - Preis
Constructive Alps 2020 - 2.Preis
Adolf Bereuter
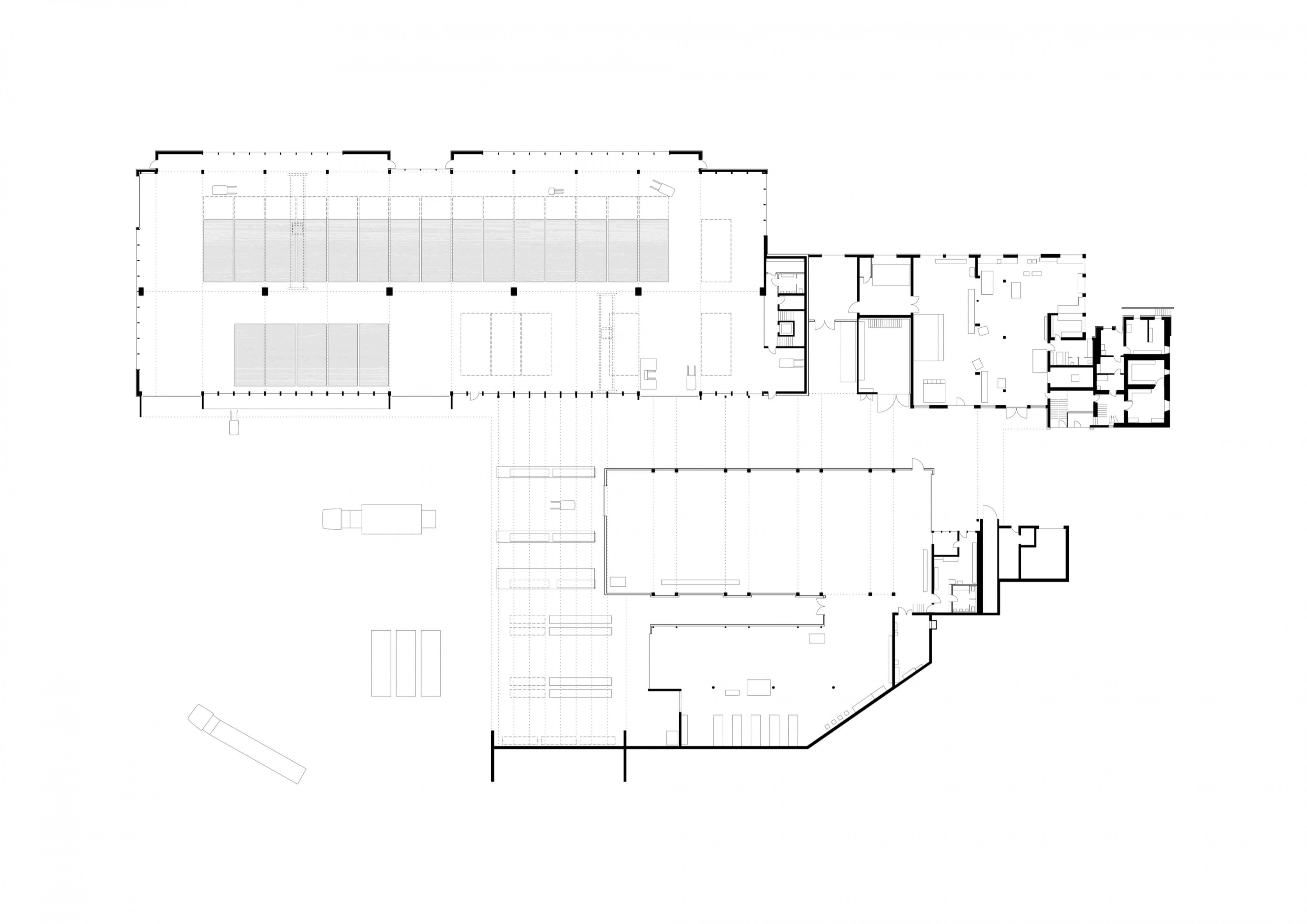
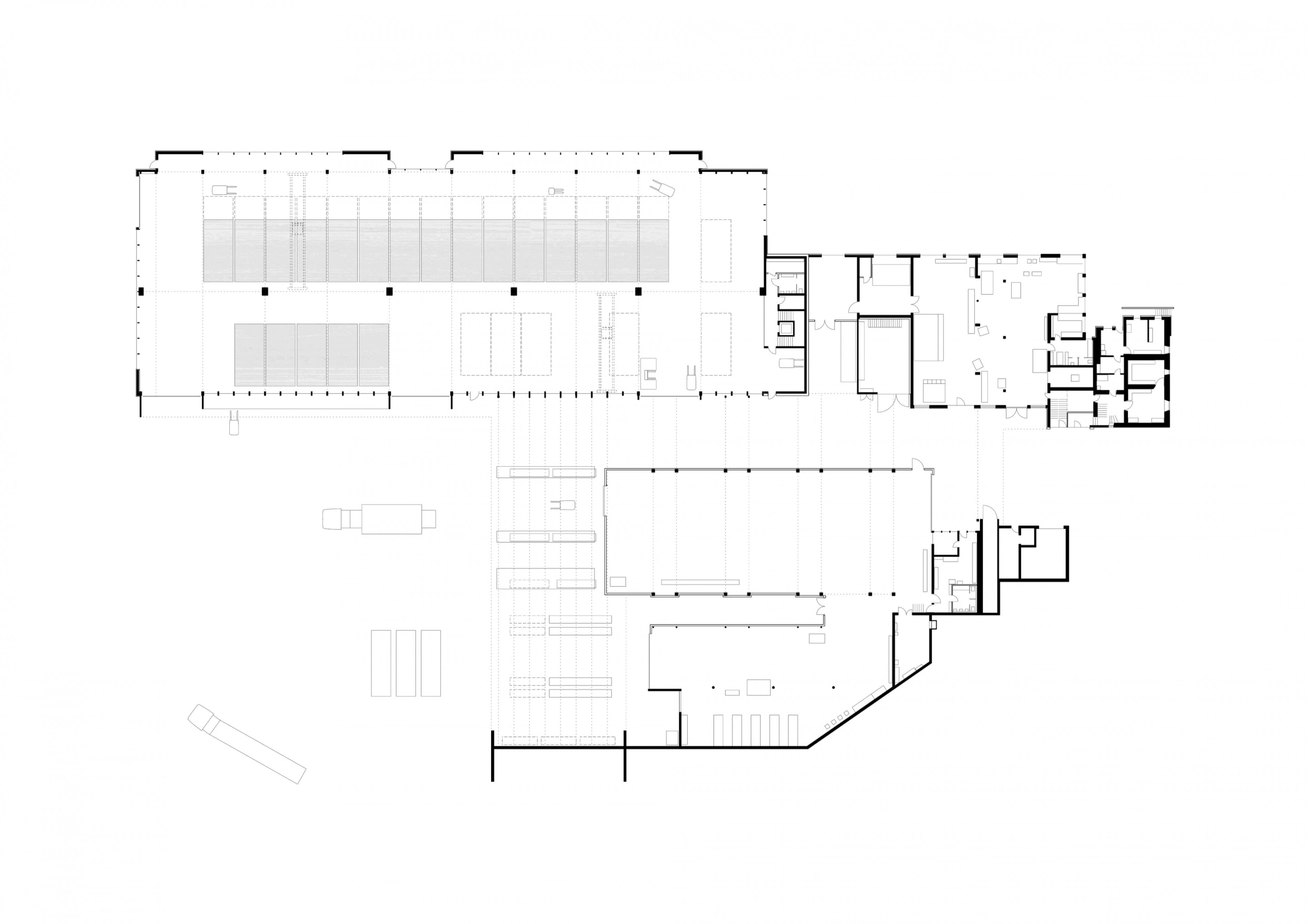
Die Zimmerei Tischlerei Kaufmann im Bregenzerwald ist ein Familienunternehmen in 4. Generation und beschäftigt sich neben moderner Holzbautechnologie auch mit dem Bau von Projekten in Raumzellenbauweise. Diese platzintensive Produktionsmethode erforderte den Neubau einer neuen Montagehalle zur Herstellung dieser modularen Raumzellen. Die Halle ist in 2 „Hallenschiffe“ unterteilt. Ein Längsschiff mit Geleisen ist für die Herstellung reserviert, im zweiten Schiff werden die fertigen Module gelagert.
Durch die raumplanerische Rahmenbedingung war es notwendig, die Halle in ihrem äußeren Erscheinungsbild so niedrig wie möglich zu bauen, um dem Ortsbild zu entsprechen. Üblicherweise entstehen hohe Dachkonstruktionen, wenn schwere Kranbahnen und hohe Schneelasten über das Tragwerk abzuführen sind. Auch war es notwendig, die Anzahl der Mittelstützen auf ein Minimum zu reduzieren. Aus diesen Gründen wurde ein Fachwerk mit integrierten Kranbahnen als Konstruktionsprinzip entwickelt.
Auf eingespannten Betonstützen lagern fünf vorgefertigte Hochlast-Fachwerke aus Baubuchenholz. Die Doppelfachwerke erhalten durch ihren horizontalen Abstand zueinander die Eigenschaft, Torsion aufnehmen zu können, welche infolge der Kranbahnen in die Fachwerke eingeleitet werden. Durch die Integration der Kranbahnen in Holzbauweise in das Fachwerk wird einerseits die Torsion verringert, andererseits die Arbeitsfläche der Kranbahnanlage nicht unnötig verkleinert.
Die Baubuche erlaubt es, mit teilweise zimmermannsähnlichen Holzanschlüssen hohe Normallasten im Fachwerk zu übertragen. Dadurch kann an den Knotenpunkten größtenteils auf den Einsatz von Stahl mit Brandschutzanstrich verzichtet werden. Die höheren statischen Werte der Buche als Grundmaterial des Buchensperrholzes lassen das Tragwerk überdies sehr filigran erscheinen, da Querschnitte bis zu 40 % geringer dimensioniert werden müssen.









