

K33
Zimmerei Kaufmann
Reuthe | AT
SystemMicro Living
2019
Christian Grass
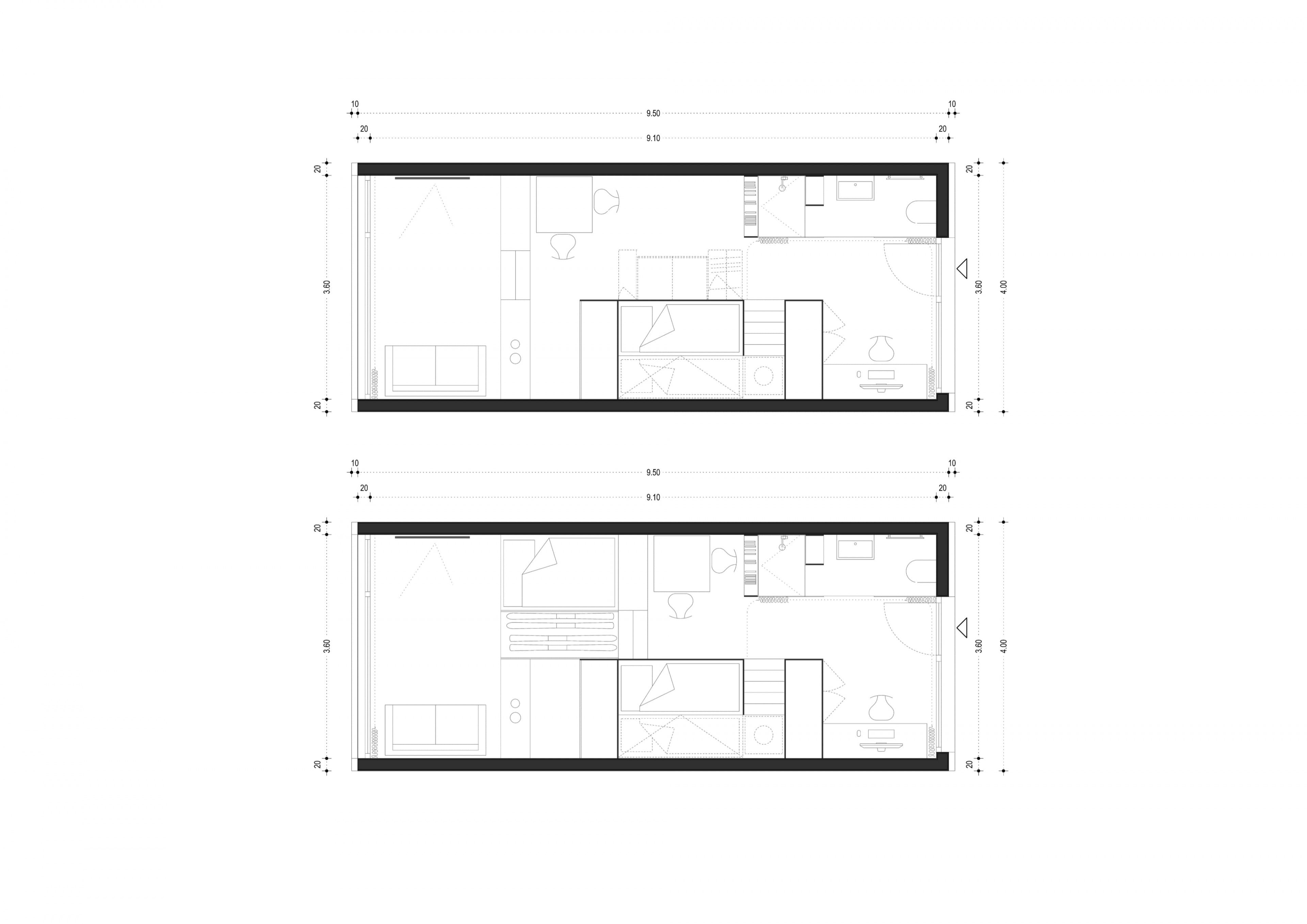
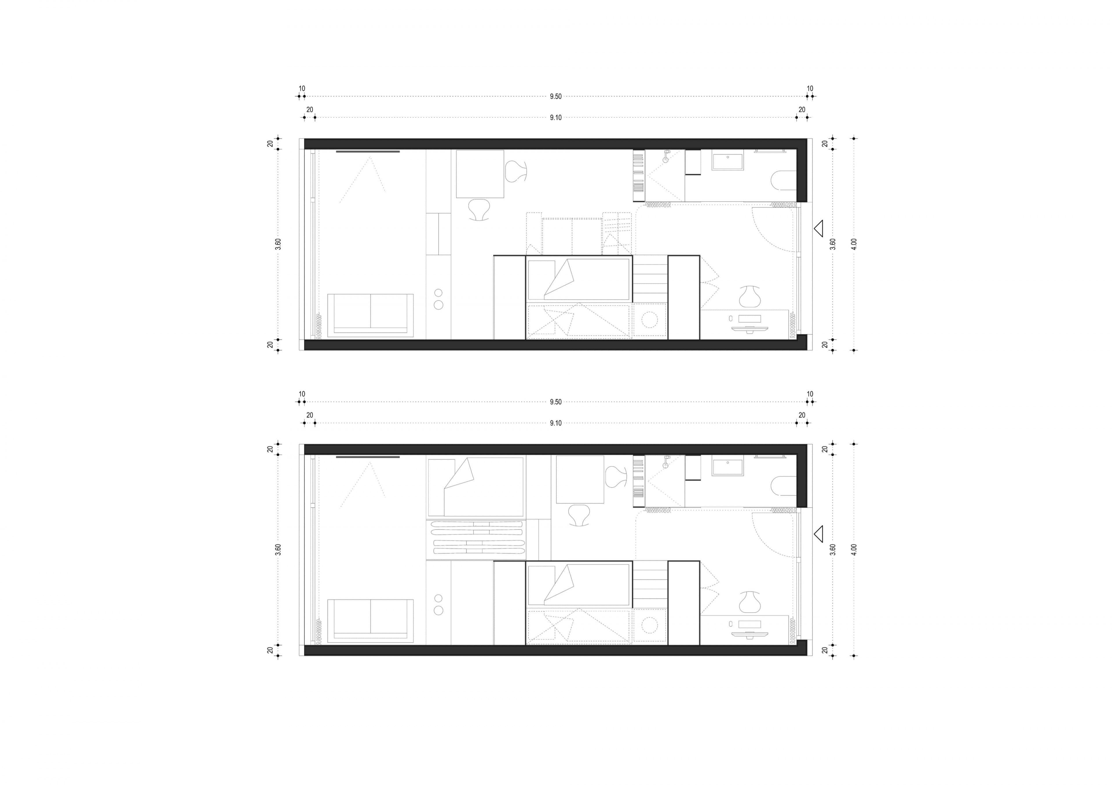
Das K33 ist eine in sich geschlossene Wohneinheit, welche den Ansatz hat, auf möglichst wenig Grundfläche, möglichst viel Nutzungen zu ermöglichen, ohne dafür auch nur im Geringsten auf Komfort zu verzichten. Das Wohnen, wie wir es gewohnt sind, soll ohne verschieben oder umbauen von Einrichtungen funktionieren. Ein Sofa bleibt Sofa und wird nicht zum Bett umgebaut. Ein Esstisch bleibt Esstisch und muss nicht noch Arbeitsplatz sein. Unter der Treppe ist eine Waschmaschine verstaut, aufhängen kann man die Wäsche an einer im Schrank eingebauten Wäscheleinenlade. Bis zu 4 Personen können übernachten, was speziell bei Patchworkfamilien oft notwendig und angenehm ist – und trotzdem hat jeder seinen Bereich. Das alles würde auf 33 m² nicht funktionieren, wenn nicht die dritte Dimension, die Höhe auch ausgenutzt wird. Der Innenraum mit einer lichten Raumhöhe von 3 m ist notwendig für Nutzungen und vermittelt überdies einen großzügigen Raumeindruck – man hat nie das Gefühl von Enge oder Platznot. Dies auch deswegen, weil auch jede nur so kleine Ecke für geschlossenen Stauraum für Schi, Koffer, Winterkleidung, Staubehältnisse, und alles was man so braucht ausgenutzt werden kann.
K33 ist sowohl als Einzelgebäude einsetzbar, zeigt aber bei der Stapelung von vielen Modulen seine wahre Stärke. Das längliche Modul ist an beiden Schmalseiten belichtet, somit gibt es einen privaten Freiraum beim Wohnzimmer und einen kommunikativen Freiraum beim Eingang, um mit anderen Gleichgesinnten die Erschließungszone des Gebäudes zu beleben. Konstruiert ist das modulare Gebäude in reiner Holzbauweise als Rahmenbau mit dem Ansatz, sehr wenige Materialien im Ausbau zu verwenden. Boden, Decke und Wand aus gebeizter, heimischer Fichte werden ergänzt durch Sperrholzmöbel.











