

Hotel Sonne
Hotel Sonne Mellau GmbH
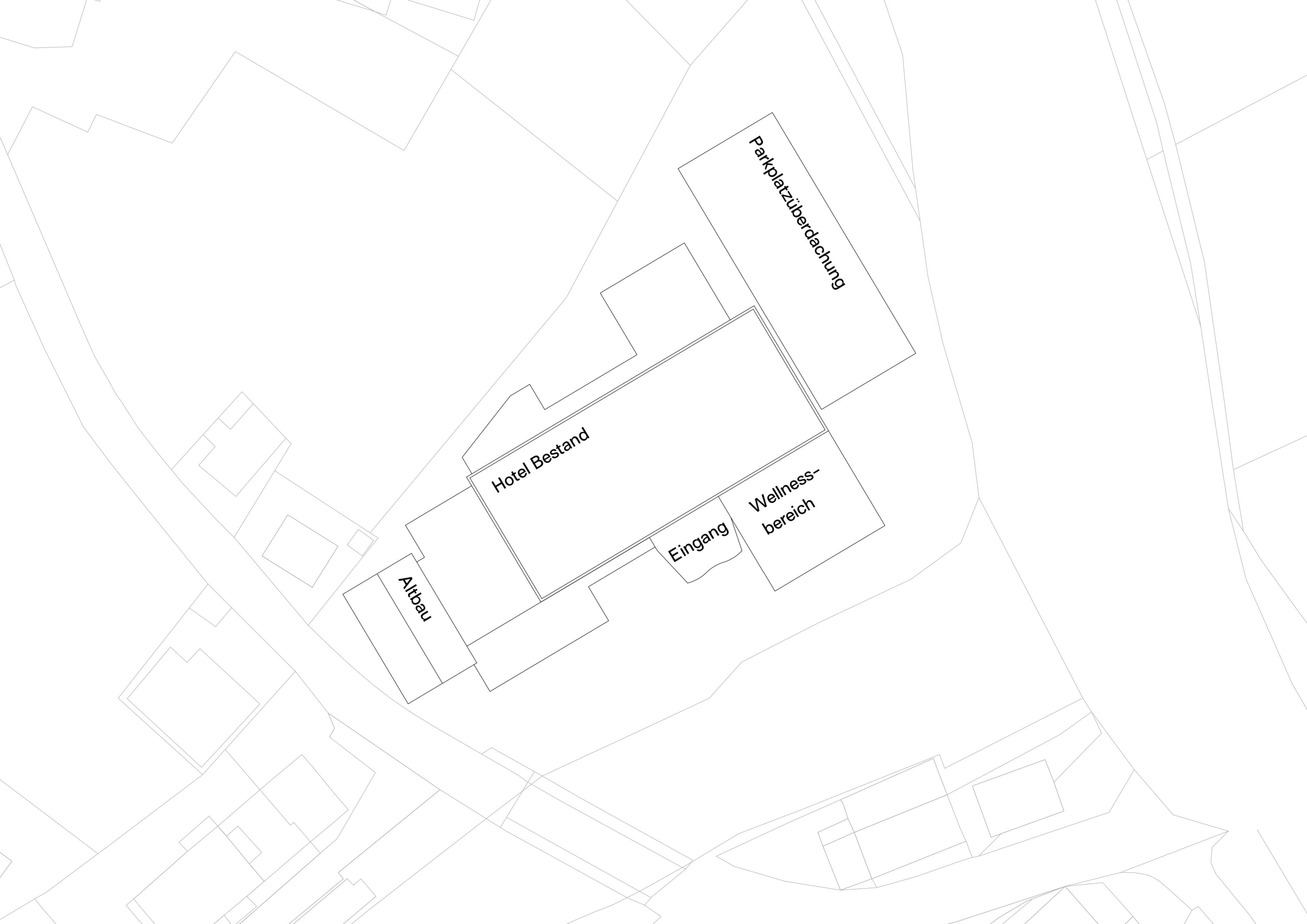
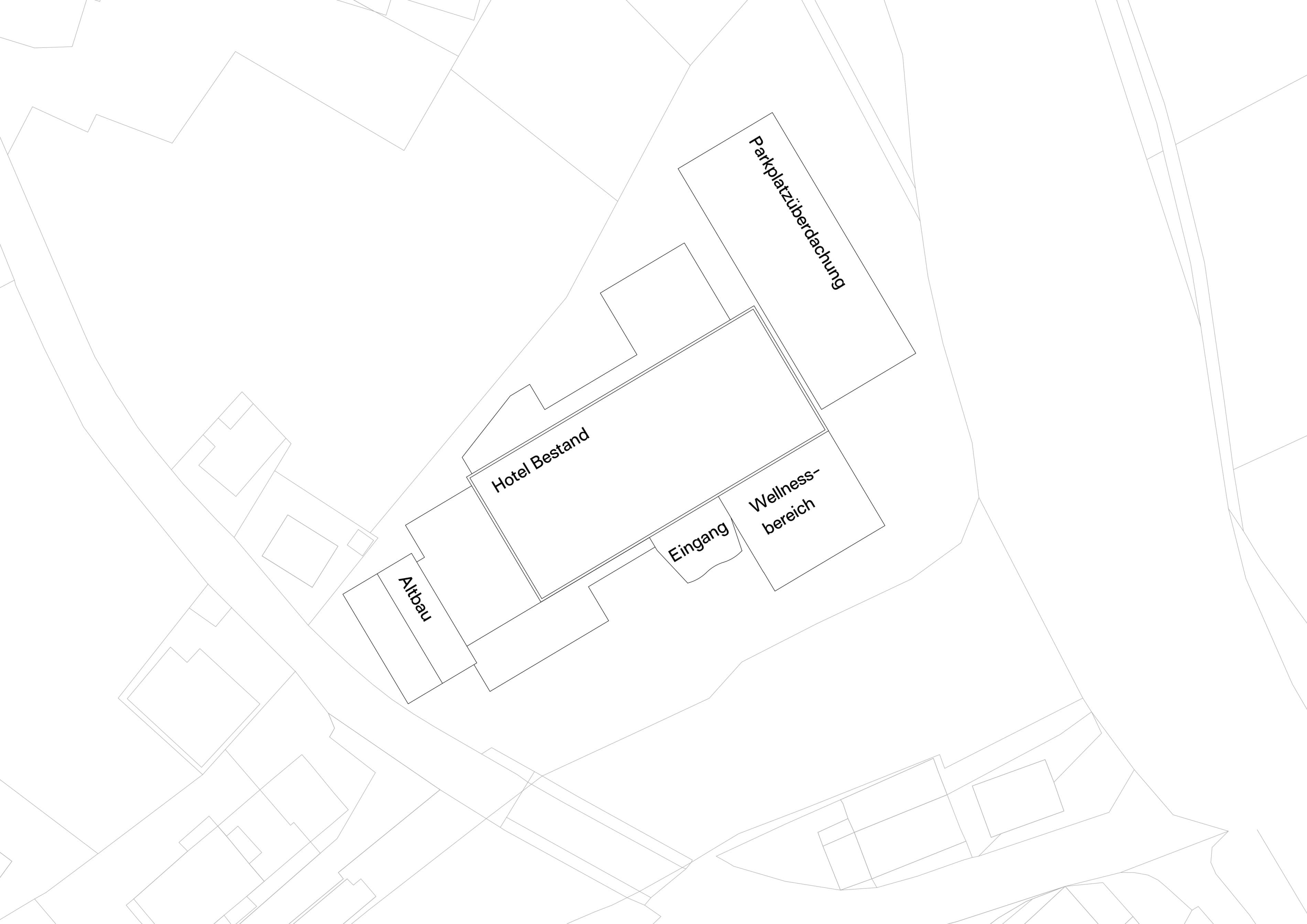
Mellau | AT
Hotel
Wohnfloor Vertriebs Ges.m.b.H.
2024
Bruno Klomfar
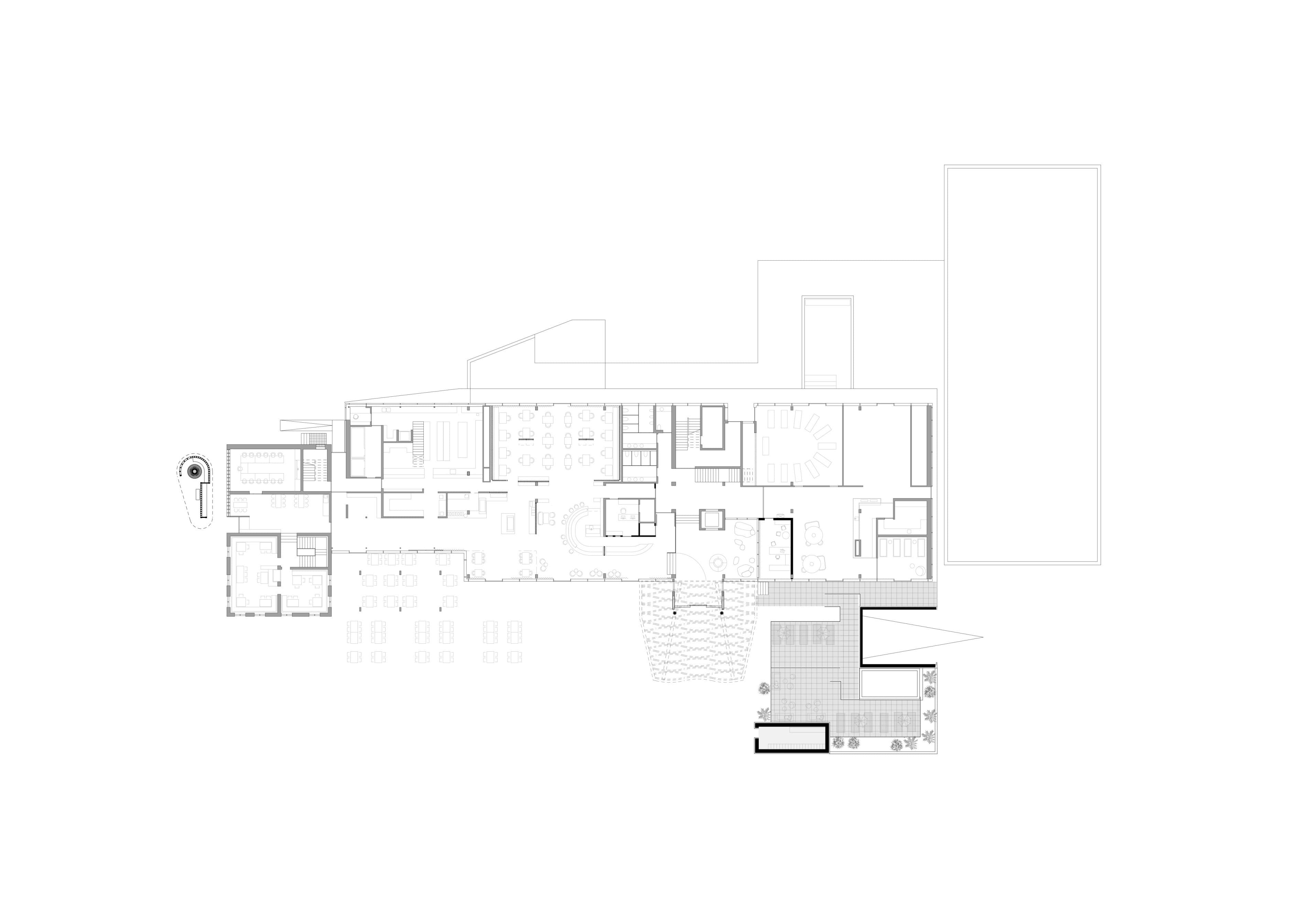
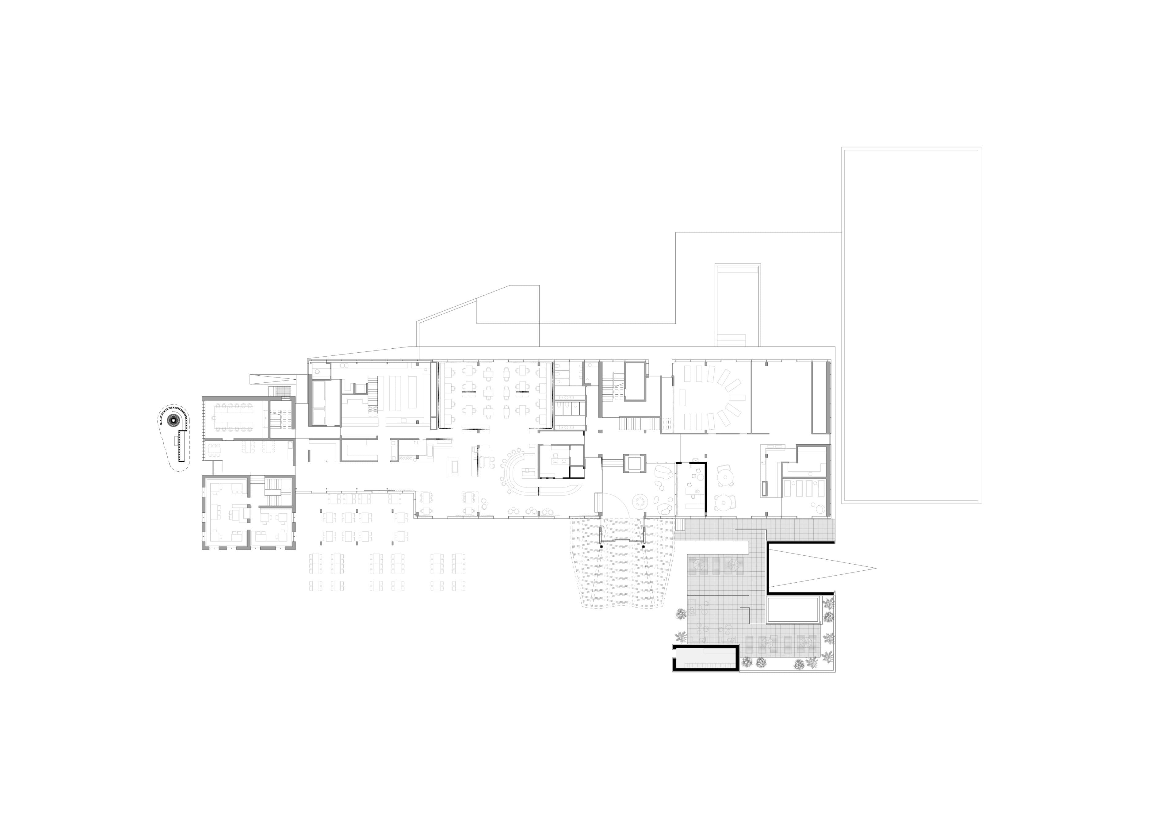
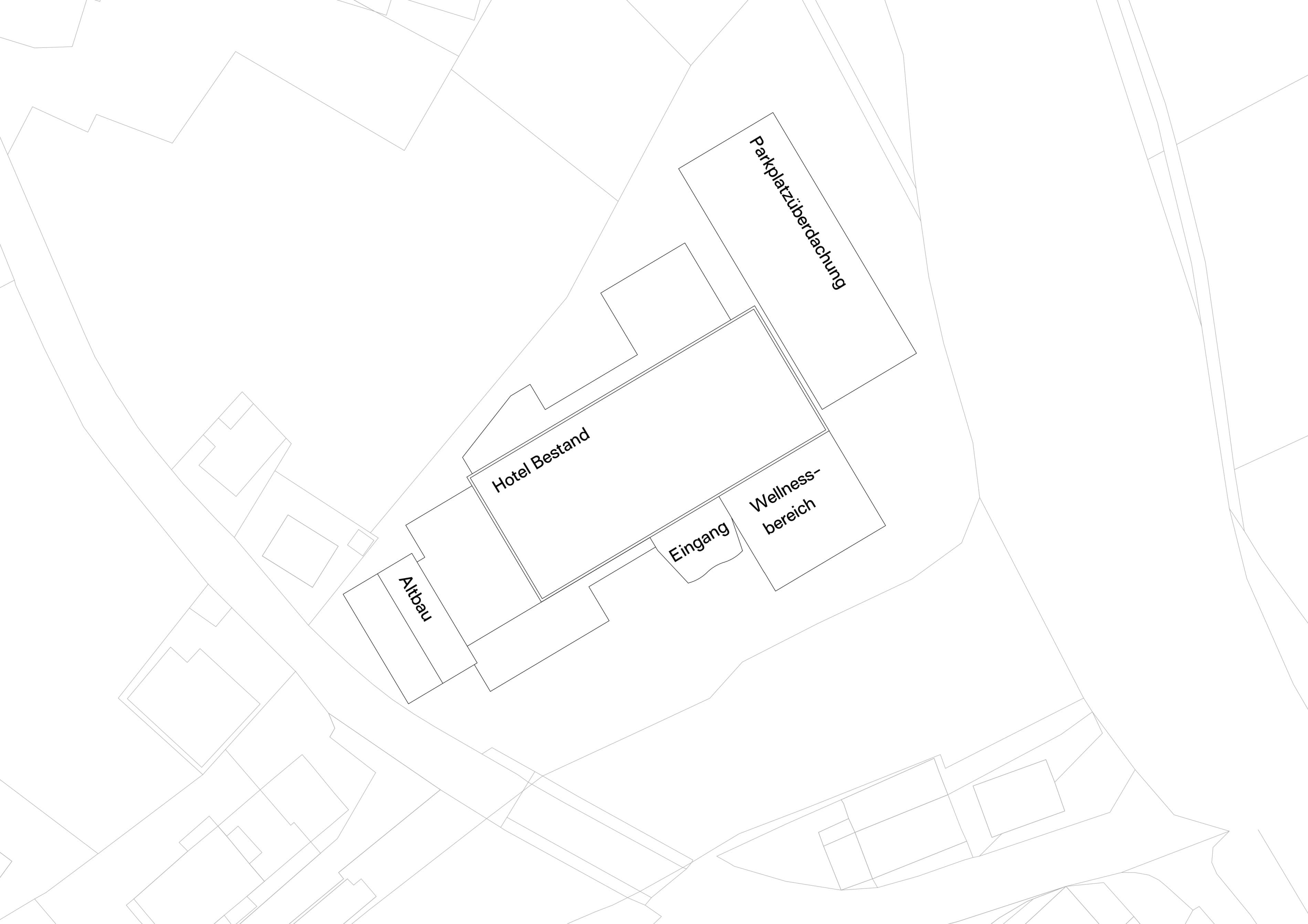
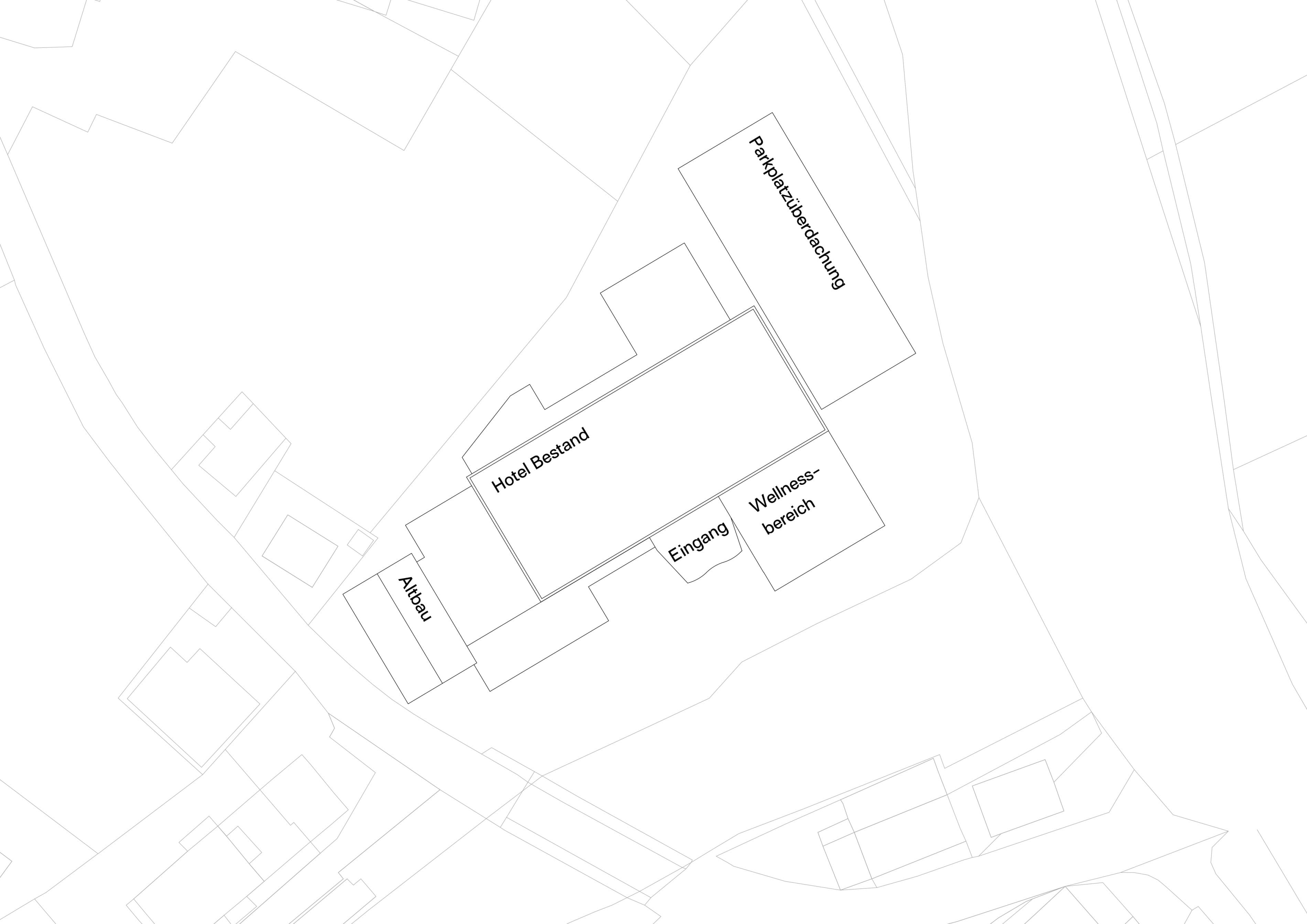
Im Sommer 2024 wurde das Hotel „Sonne Mellau – Feel Good Hotel“ einer umfassenden Neugestaltung unterzogen. Die Architektur konzentriert sich auf Offenheit und Großzügigkeit, wobei der Fokus auf einer klaren, modernen Gestaltung liegt. Die Zimmer und Suiten wurden behutsam renoviert und bieten nun mehr Raum und Komfort, während vier neue Suiten zusätzliche Annehmlichkeiten wie Dampfdusche und Weinkühlschrank bieten.
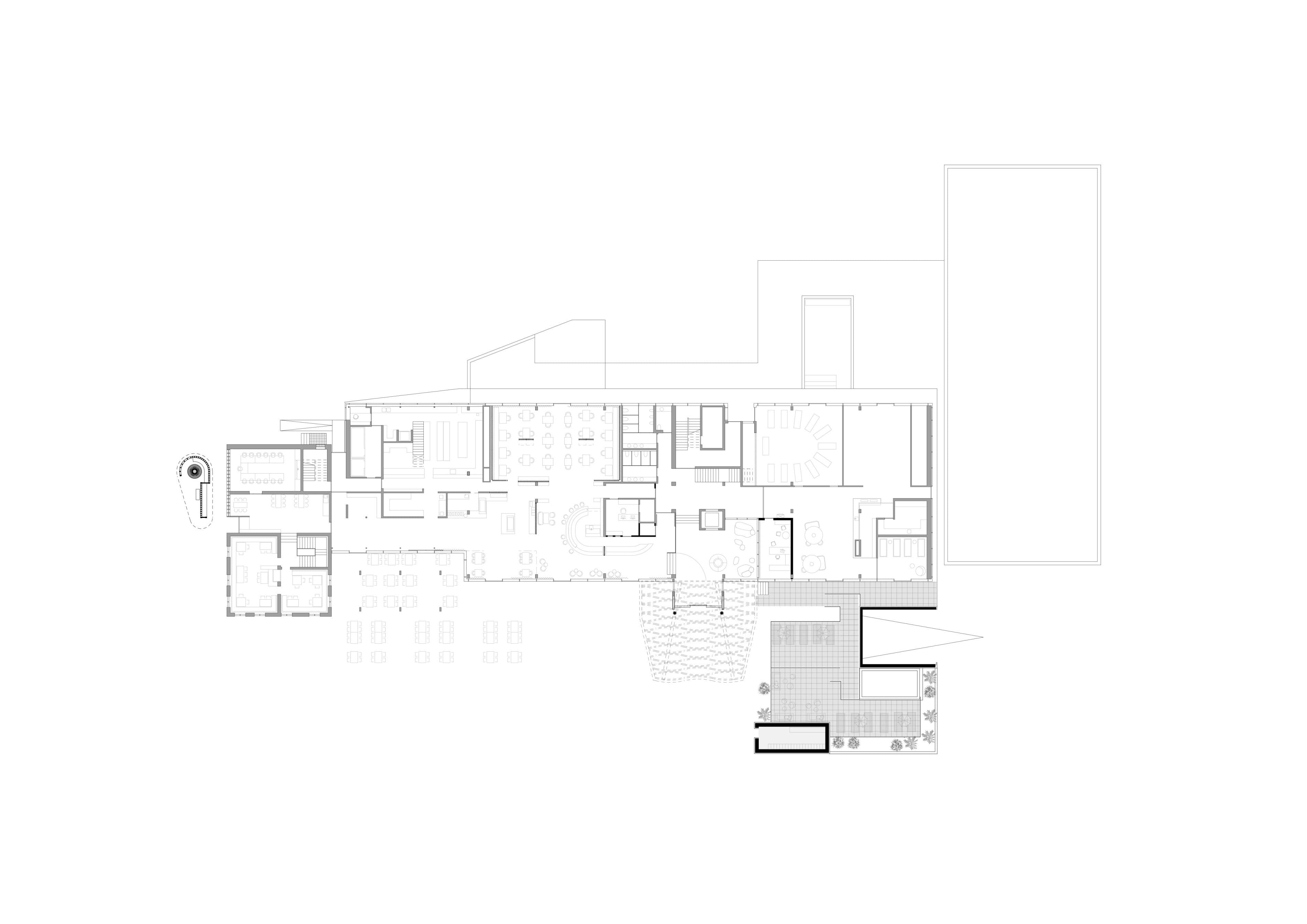
Der Spa-Bereich wurde auf 1.500 m² erweitert und umfasst Saunen, Whirlpools sowie ein exklusives Private Spa. Im Außenbereich wurde das Sonnendeck mit Pool und Lounge neugestaltet, um eine entspannte Atmosphäre zu schaffen. Der Fitnessbereich mit modernsten Geräten und der Yoga-Raum ergänzen das Angebot für aktive Erholung.
Nachhaltigkeit spielt eine zentrale Rolle: Eine erweiterte Photovoltaikanlage und eine eigene Quelle für die Gartenbewässerung unterstreichen das ökologische Engagement.
Das neue Design schafft einen modernen, nachhaltigen Rückzugsort, der den Gästen im Bregenzerwald Ruhe und Erholung bietet.



















