

Karrenseilbahn
Dornbirner Seilbahn AG
Dornbirn | AT
Seilbahn
2025
Bruno Klomfar
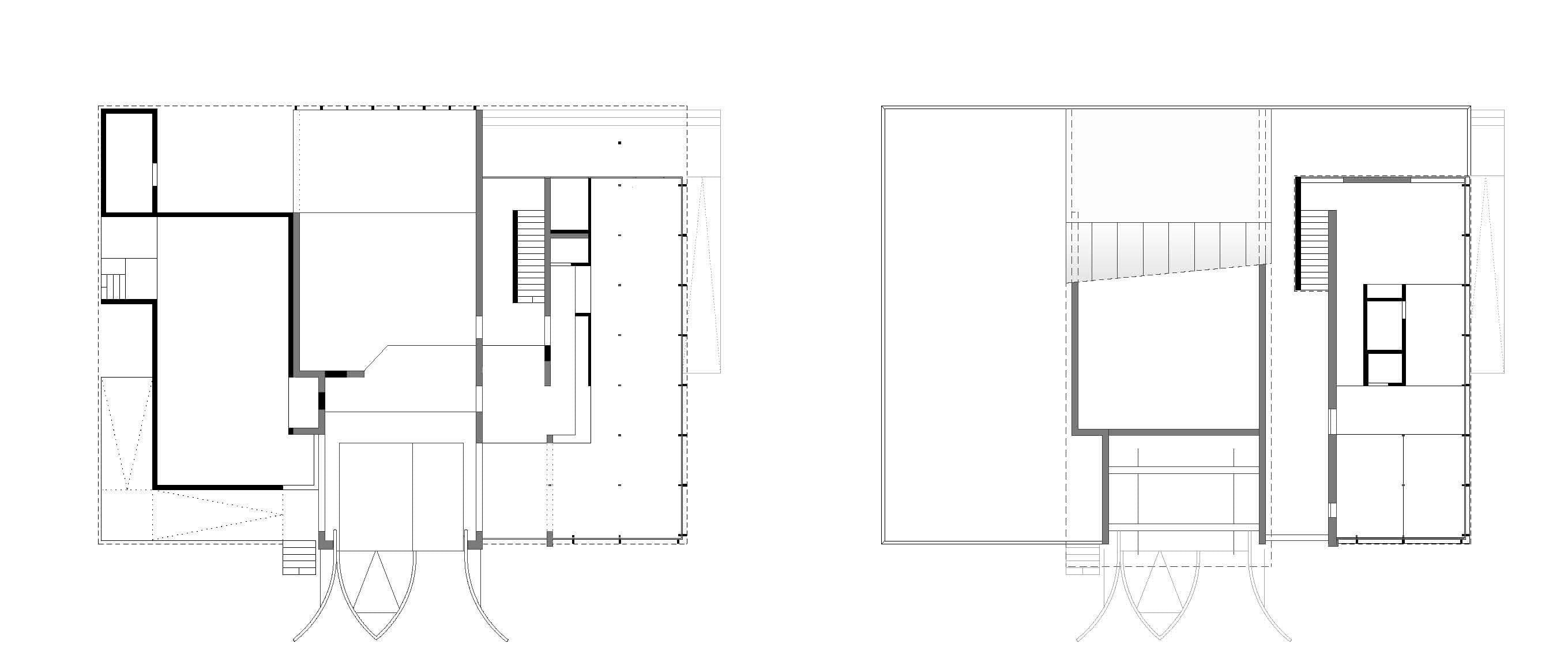
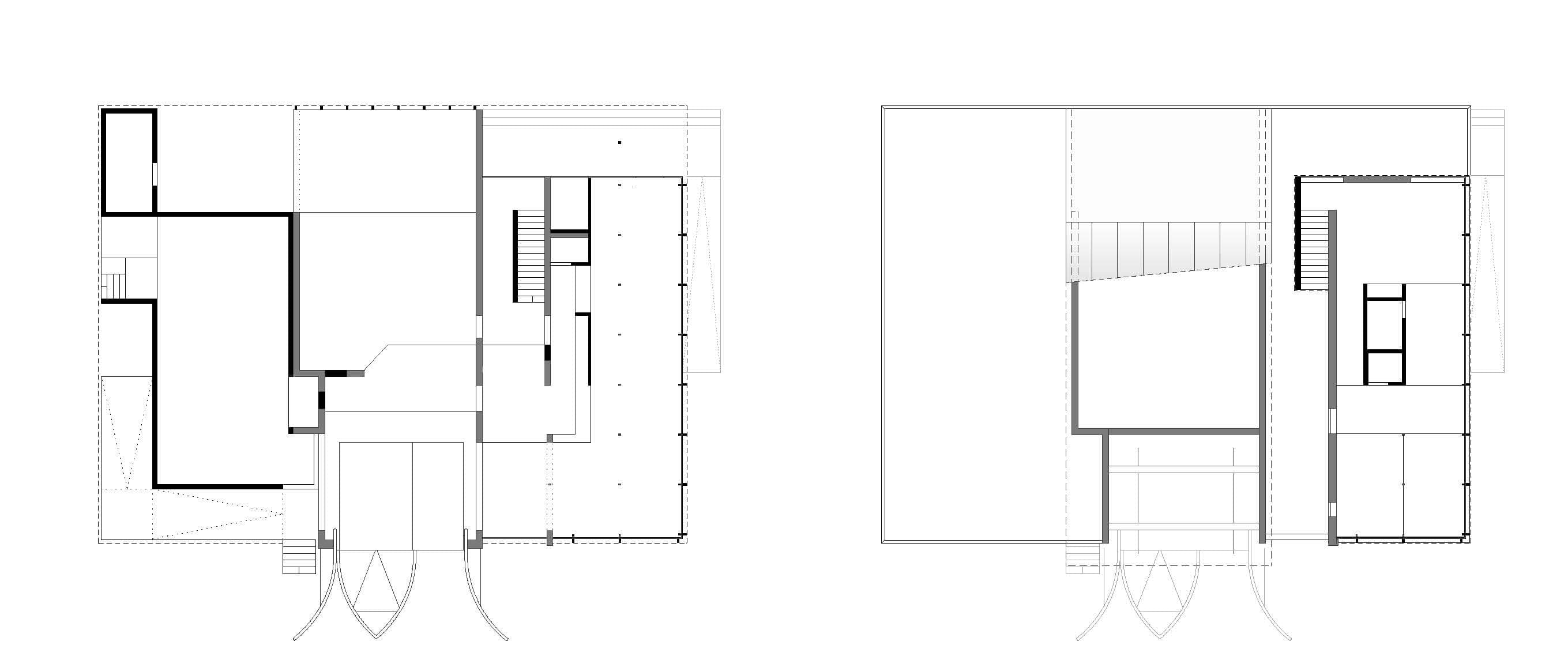
Der Umbau und die Erweiterung der Talstation wurden durchgeführt, um diese für die aktuellen und zukünftigen Anforderungen zu rüsten. Als beliebte Attraktion ist die Seilbahn ganzjährig in Betrieb, weshalb eine kurze Bauzeit von nur drei Monaten ein entscheidendes Kriterium in der Planung war. Besonderer Wert wurde daraufgelegt, den Bestand weitestgehend zu erhalten und durch gezielte Anbauten in Holzbauweise sinnvoll zu ergänzen. Die Eingangshalle mit Kassen- und Wartebereich wurde erweitert, und im Obergeschoss entstanden Büroräume, die den modernen Arbeitsanforderungen gerecht werden. Auf der westlichen Seite der Station wurde eine Anlieferung für den Gastronomiebetrieb der Bergstation geschaffen. Zudem wurden öffentliche Toiletten sowie überdachte Fahrradabstellplätze eingerichtet. Die bestehende Teilunterkellerung wird heute als Fläche für Personal- und Technikräume genutzt.











