

Haus C+K
Familie K.
Bizau | AT
Einfamilienhaus
2024
Bruno Klomfar
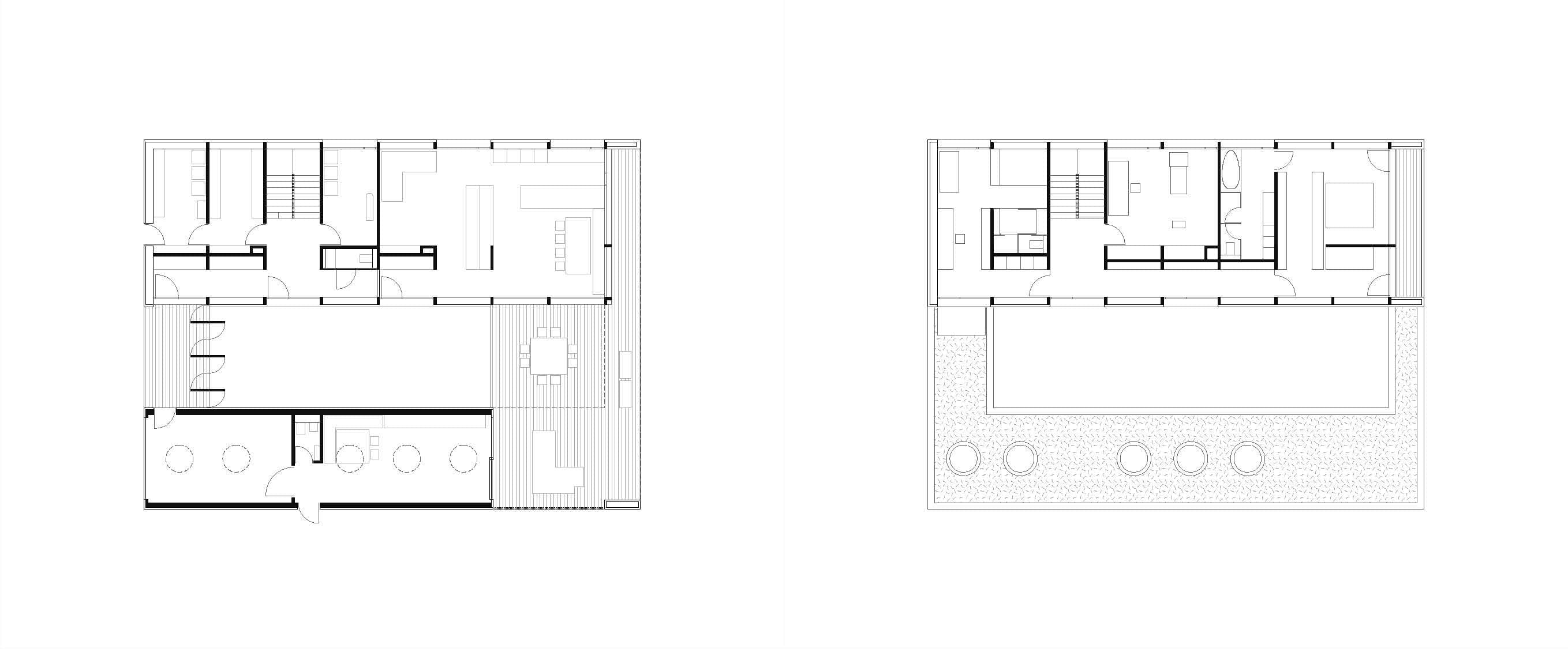
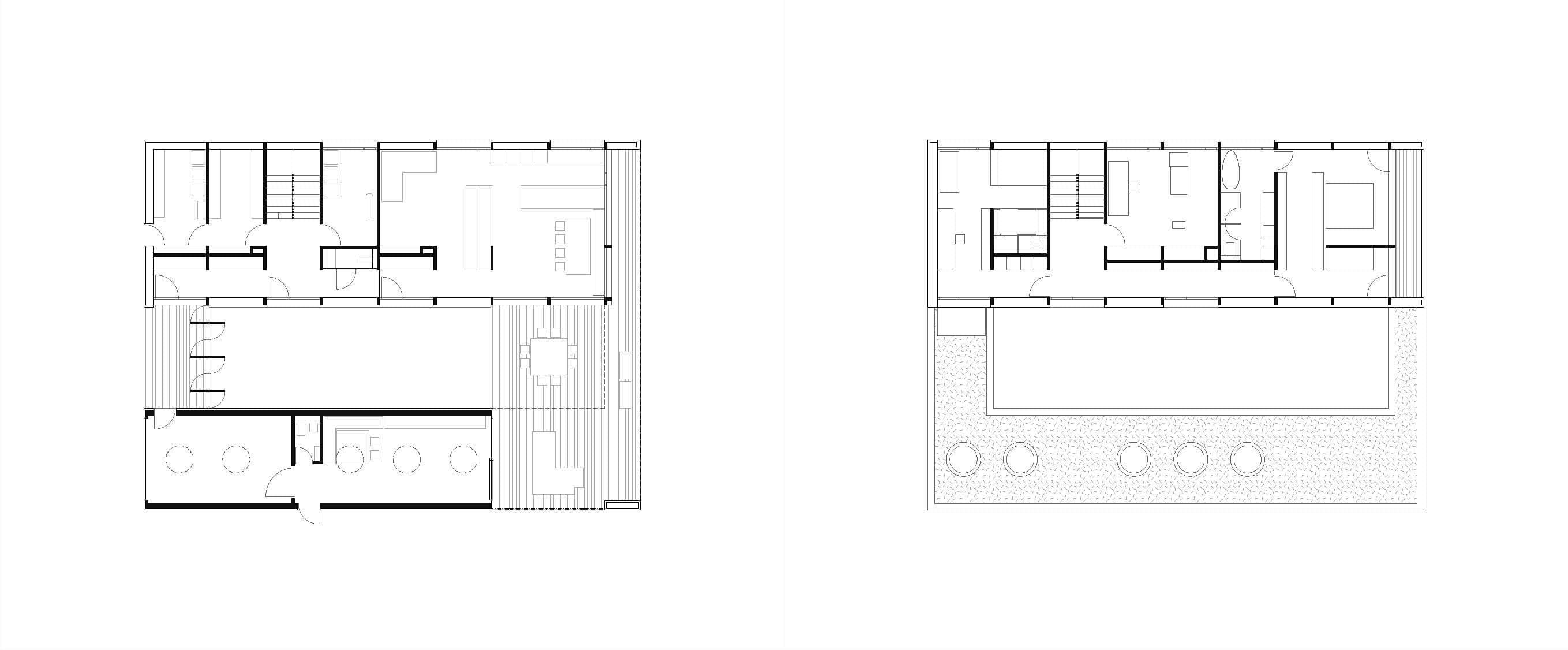
Das Einfamilienhaus in Bizau wurde als Atriumhaus konzipiert. Rechteckige, ein- bzw. zweigeschossige Volumina mit Flachdach umschließen einen Innenhof, der sich zum Eingangs- und Terrassenbereich öffnet. Hölzerne Drehelemente ermöglichen eine Durchsicht und gewähren einen weiten Blick in die Landschaft. Das Gebäude ist unterkellert mit einer Tiefgarage und Lagerräumen.
Besonders hervorzuheben ist die Verwendung heimischen Eschenholzes für alle konstruktiven Holzbauteile und für die Fassade. Auch im Innenausbau fand Kernesche bei den Täfern Anwendung. Diese Holzart, die aufgrund des Eschensterbens langfristig nicht mehr erhalten werden kann, wurde von lokalen Waldbesitzern bezogen, im Sägewerk zu Lamellen geschnitten und in Reuthe zu Leimbindern verarbeitet. Der örtliche Zimmerer hat diese dann abgebunden und aufgerichtet. So blieb die gesamte Wertschöpfung des Holzes im Bregenzerwald.















