

Apartmenthaus Tinnes
Kopf Immo GmbH
Schoppernau | AT
Tourismus
2025
Bruno Klomfar
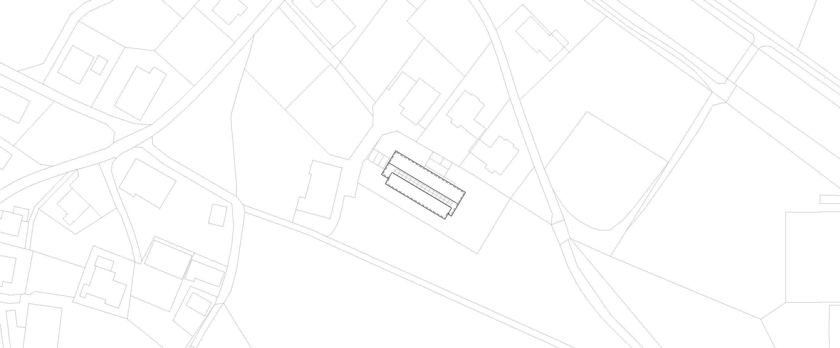
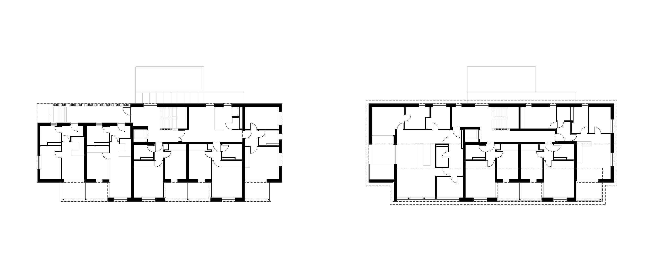
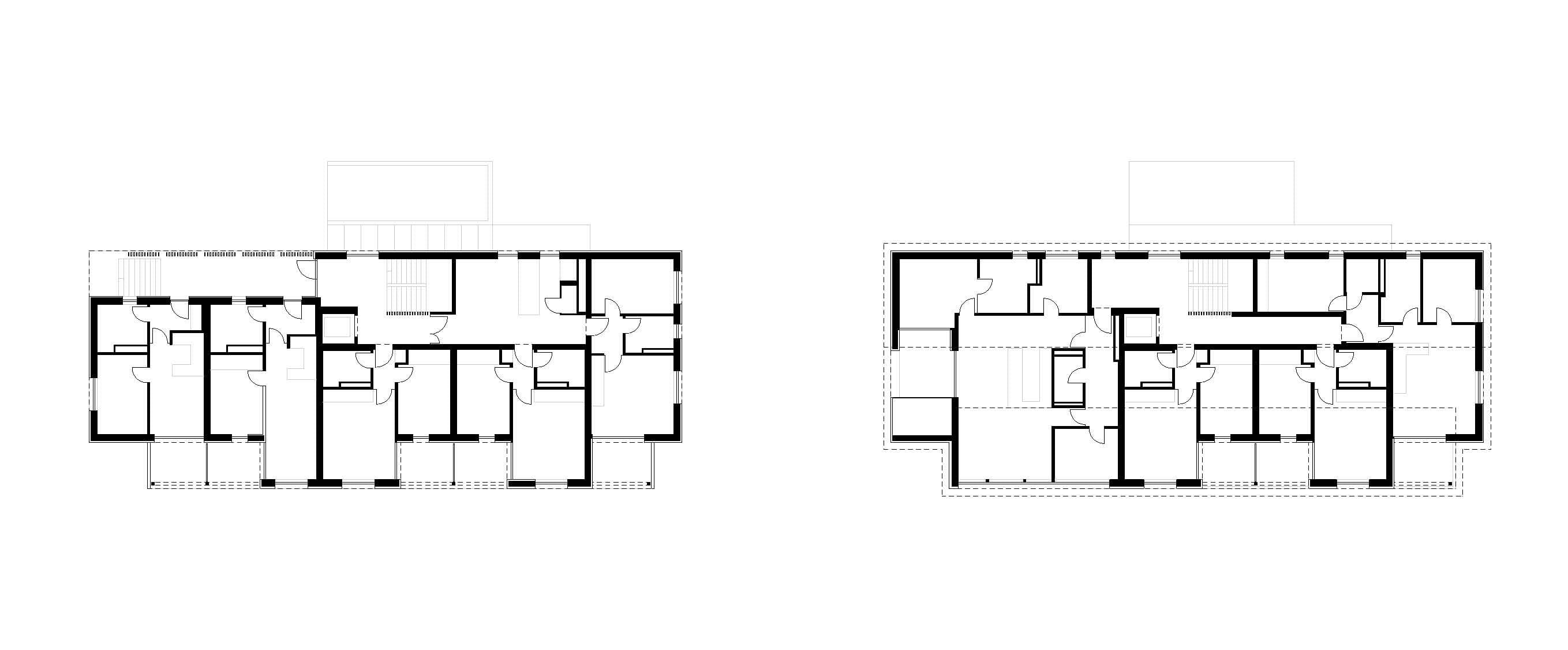
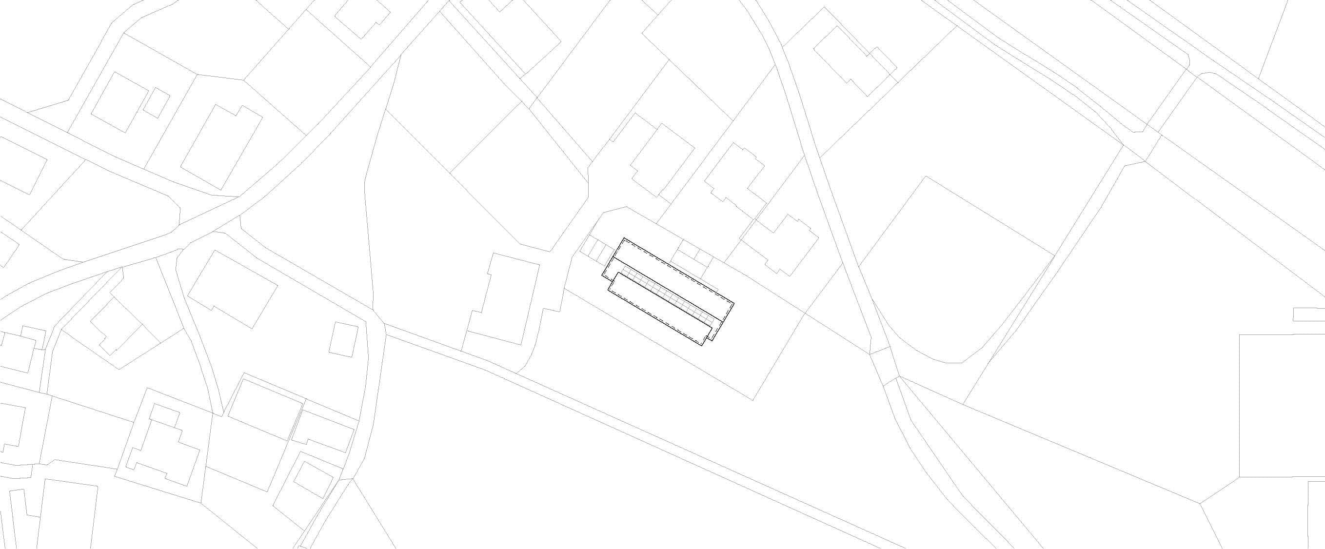
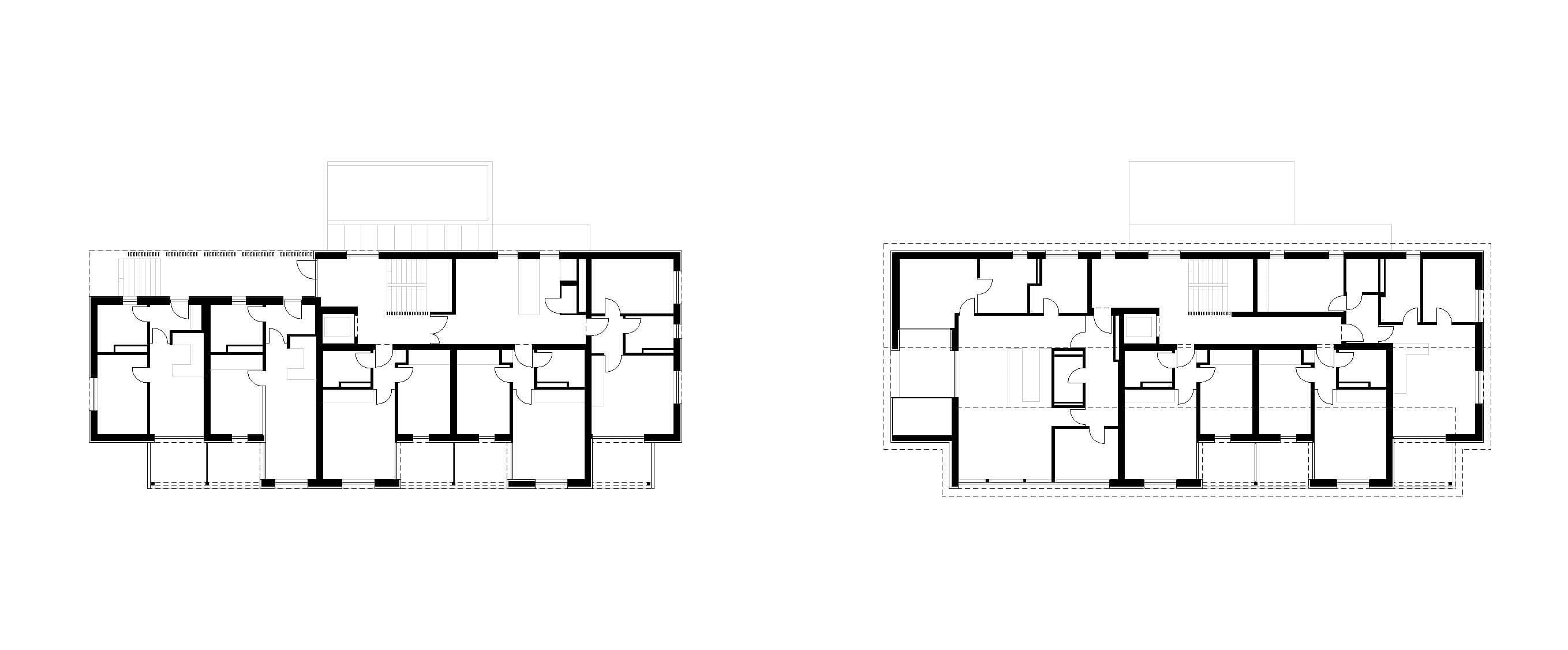
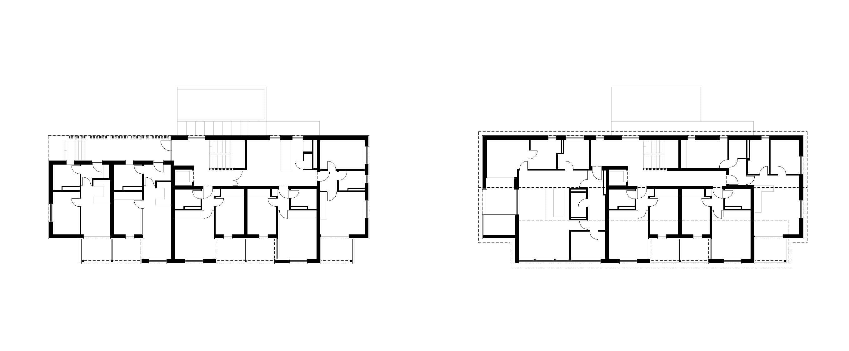
In Schoppernau entstand das Apartmenthaus „tinnes“, das sieben Ferienwohnungen, sechs Mietwohnungen und eine Tiefgarage umfasst. Das längliche Gebäude mit flach geneigtem Satteldach besitzt auf der Südseite einen eingeschobenen Kubus mit integrierten Loggien. Ab dem Erdgeschoss bestehen die Wände aus gedämmten Holzrahmenelementen, während die Decken und Dachscheiben in Massivholz ausgeführt sind. Die Fassade fügt sich mit ihren Schindeln und dem Holzleistenschirm aus Lärche sowie den Fenstereinfassungen aus Massivholz harmonisch in die Umgebung ein.
Der Bauherr legte besonderen Wert auf den Einsatz nicht industriell produzierter Holzbauteile. Das verbaute Fichtenholz stammt aus heimischen Wäldern und wurde selbst gesägt und getrocknet. Die Massivholzdecken wurden in einer lokalen Zimmerei gefertigt. So blieb der gesamte Materialumlauf des Holzes im mittleren und hinteren Bregenzerwald.






















